The Nook Grove Lane
Chalfont St. Peter
Gerrards Cross
SL9 9JU
Set in a secluded private road, a few minutes' walk from the High Street. This 4 bedroom 2 bathroom detached family home has everything a modern family need.
** A FAMILY HOME ** BOOK YOUR VIEWING **
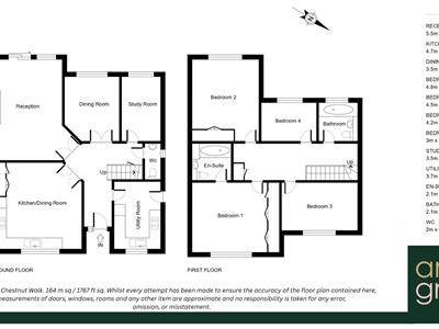
As you enter this home, all rooms seamlessly work off the hallway, allowing each reception space to be independent. The spacious fitted kitchen is to the front, accommodating a table for no less than 8 + people in the centre. The lounge is to the back, with a working fireplace and sliding doors onto the garden. There are 2 further reception rooms currently used as a dining room and office, but could be used as a snug, playroom, depending how you would like the space to work for you. There is a downstairs WC and a large separate utility room.
On the first floor, there are 4 bedrooms and 2 bathrooms. The master bedroom suite has fitted wardrobes and an ensuite bathroom. Then 3 further bedrooms (2 x doubles and 1 x good-sized single), along with a family bathroom.
The rear aspect of the house, looks over 'The Chalfonts', with the garden a easy space to maintain including established shrubs, lawn and patio space for entertaining.
There is an electric car charge already installed, along with the paved driveway providing off-street parking for 2 + cars, which could be extended STPP.
Located just off Joiners Lane, you are a minutes’ walk from Chalfont St Peter High Street, and only a few minutes’ drive from Gerrards Cross Station.
The Local Area
If schooling is a priority, you have a selection of desirable both state and private schools. For those needing to commute, you have easy access to the A40/M40 & A41. Nearby to Gerrards Cross Overground Station, providing direct access to London in 21 minutes. Heathrow is approx 10 miles / 30 mins away. You are a moment's walk from the High Street, providing easy access to amenities (M&S, Tesco, local bakery, restaurants, and independent shops). Nearby to even more choices within Gerrards Cross, Amersham and Beaconsfield. Surrounded by green spaces, or independent Yoga & Pilates studios for those wanting to be active.
Essential Information
Stamp Duty. Based on the purchase price of £925,000 as your sole residents, £36,250.
EPC. D
Council Tax Band. G
Space. 1767 sq ft
Road Maintenance. £150 per year
Although these particulars are thought to be materially correct their accuracy cannot be guaranteed and they do not form part of any contract.
Property data and search facilities supplied by www.vebra.com