321 Alcester Road
Hollywood
Birmingham
B47 5HU
A Building Plot With Planning Permission For Two Three Bedoom Semi Detached Dormer Bungalows In This Semi Rural Cul De Sac Location
An ideal investment opportunity complete with full planning permission for a pair of semi detached properties in this semi rural lane on the fringes of Hollywood and Majors Green.
Majors Green is a pleasant backwater on the fringe of the Solihull borough. Falling with Bromsgrove Rural District Council with junior and infant schooling being catered for at The Coppice school in Hollywood and senior schooling being at Woodrush High School on the same campus.
In close proximity to the property are Whitlocks End & Wythall Railway Stations, which offers commuter services between Stratford upon Avon and Birmingham. There are extensive parking facilities at Whitlocks End station and regular services during peak travelling hours.
The main shopping area in Shirley is some two miles distant on the main A34 Stratford Road, and here one will find an excellent array of shops ranging from small speciality and convenience stores, to a choice of major supermarkets and superstores on the Retail Park. There is a large choice of restaurants and hostelries, together with a thriving business community which extends down the Stratford Road to the Cranmore, Widney, Monkspath and Solihull Business Parks.
Beyond here is the Blythe Valley Business Park which sits on the junction of the M42 motorway, a short journey down which will bring you to the National Exhibition Centre and Birmingham International Airport and Railway Station.
A drive of approximately 3 miles will bring you to junction 3 of the M42 motorway, which links with the M40, M6 and M5 at the heart of the Midlands Motorway Network.
Plot only for sale.
Register your interest with us!
Ground Floor
Lounge / Dining / Kitchen = 26.7m2
Hall = 7.8m2
WC = 2.1m2
Store = 1.1m2
Bedroom 2 = 9.6m2
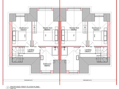
First Floor
Landing = 3m2
Bedroom 2 = 10.1m2
Master Bedroom = 10.31m2
Bathroom = 7.3m2
TENURE: We are advised that the property is FREEHOLD
BROADBAND: We understand that the standard broadband download speed at the property is around 13 Mbps, however please note that results will vary depending on the time a speed test is carried out. The estimated fastest download speed currently achievable for the property post code area is around 65 Mbps. Data taken from checker.ofcom.org.uk on 21/01/2026. Actual service availability at the property or speeds received may be different.
MOBILE: Please refer to checker.ofcom.org.uk for mobile coverage at the property. This can vary depending on the network provider and other factors that can affect the local mobile reception and actual services available may be different depending on the particular circumstances, precise location and network outages.
VIEWING: By appointment only with the office on the number below.
These particulars are for general guidance only and are based on information supplied and approved by the seller. Complete accuracy cannot be guaranteed and may be subject to errors and/or omissions. They do not constitute representations of fact or form part of any offer or contract. Any Prospective Purchaser should obtain verification of all legal and factual matters and information from their Solicitor, Licensed Conveyancer or Surveyors as appropriate. The agent has not sought to verify the legal title of the property and the buyers must obtain verification from their solicitor. Photographs are provided for illustrative purposes only and the items shown in these are not necessarily included in the sale, unless specifically stated. The agent has not tested any apparatus, equipment, fixtures, fittings or services mentioned and do not by these Particulars or otherwise verify or warrant that they are in working order.
MONEY LAUNDERING REGULATIONS: Under anti-money laundering legislation, we are obliged to confirm the identity of individuals and companies and the beneficial owners of organisations and trusts before accepting new instructions, and to review this from time to time. To avoid the need to request detailed identity information from vendors and intending purchasers, we may use approved external services which review publicly available information on companies and individuals. However, should those checks, for any reason, fail adequately to confirm identity, we may write to you to ask for identification evidence. If you do not provide satisfactory evidence or information within a reasonable time, we may have to stop acting for you and we would ask for your co-operation in order that there will be no delay in agreeing a sale. Any purchaser who has a provisional offer accepted via this company will be liable to pay a purchase administration fee of £25 inclusive of VAT to cover these checks.
REFERRAL FEES: We may refer you to recommended providers of ancillary services such as Conveyancing, Financial Services and Surveying. We may receive a commission payment fee or other benefit (known as a referral fee) for recommending their services. You are not under any obligation to use the services of the recommended provider.
Although these particulars are thought to be materially correct their accuracy cannot be guaranteed and they do not form part of any contract.
Property data and search facilities supplied by www.vebra.com