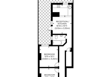
A two double bedroom ground floor period maisonette with a private garden. The property is within easy reach of Earlsfield Mainline Station and all the local amenities the area has to offer including the popular bars and restaurants. The flat is available immediately and offered Unfurnished. Council tax band C. EPC rating D.
Although these particulars are thought to be materially correct their accuracy cannot be guaranteed and they do not form part of any contract.
Property data and search facilities supplied by www.vebra.com