Email: mansfield@buckleybrown.co.uk
55-57 Leeming Street
Mansfield
Notts
NG18 1ND
EXCEPTIONAL DEVELOPMENT OPPORTUNITY…
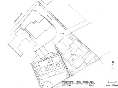
We are pleased to present this outstanding building plot situated in the highly desirable village of Pleasley, offering an exciting opportunity for developers and investors seeking a larger-scale residential project.
The plot is conveniently located close to local amenities, shops, and excellent transport links, while also enjoying a semi-rural position that combines accessibility with a peaceful, countryside outlook.
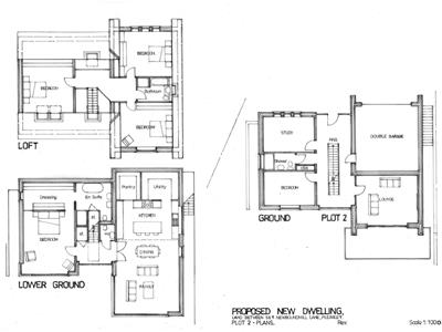
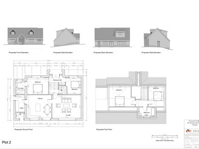
Plot 2 is offered with conditional planning permission for the erection of an impressive three-storey, five-bedroom detached dwelling with a detached double garage, providing substantial living accommodation and excellent end-value potential.
Our experienced valuer team has advised that, based on current market conditions, Plot 2 could achieve a strong gross development value of £600,000. This figure is indicative only and represent an opinion at this time. Final values will be subject to the finished specification and prevailing market conditions at the time of sale.
Full planning details are available via the Bolsover District Council Planning Applications website under reference 23/00253/FUL.
The plot enjoys open views, a natural surrounding landscape, and is within walking distance of the River Maun. The generous plot size and desirable location further enhance its appeal.
For those not seeking immediate development, the land may also be suitable for alternative uses such as the keeping of livestock or wildlife, as seen with neighbouring plots in the area (subject to any necessary consents).
For further details or to arrange a viewing, please contact our helpful team on 01623 633633.
Although these particulars are thought to be materially correct their accuracy cannot be guaranteed and they do not form part of any contract.
Property data and search facilities supplied by www.vebra.com