26 Market Place
Richmond
North Yorkshire
DL10 4QG
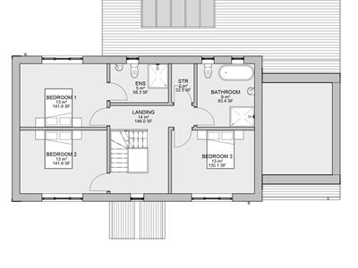
A rare opportunity to purchase this large building plot in a sought after village with in easy reach of A1(M) and the nearby market towns of Richmond, Northallerton and Bedale. There is full planning permission to build a beautiful and substantial family home, with open plan living, three floors with five large bedrooms. garage and drive way and a large garden. The planning permission has been implemented with foundation trenches marked out and dug and there is no S106 contribution.
The access to the front is via an unadopted lane bounded by Tunstall Beck to the South. There are no services connected but are located nearby.
A fantastic opportunity to purchase a single building plot which has full planning permission to build a detached family home.
Planning ref: 19/00387/FULL Richmondshire District Council
Services: No services connected but mains water, drains and electric nearby.
S106 affordable housing contribution of £23,600 has been challenged and overturned. There is now NO S106.
*Please note that a member of the Carvers team has a beneficial interest in this property.
Should a purchaser(s) have an offer accepted on a property marketed by Carver Residential they will need to undertake an identification check. This is done to meet our obligation under Anti Money Laundering Regulations (AML) and is a legal requirement. We use a specialist third party service to verify your identity, this is not a credit check and will have no effect on credit history. The cost of these checks is £36 inc. VAT per buyer, which is paid in advance, when an offer is agreed and prior to a sales memorandum being issued. This charge is non-refundable.
Although these particulars are thought to be materially correct their accuracy cannot be guaranteed and they do not form part of any contract.
Property data and search facilities supplied by www.vebra.com