2 Runwell Road
Wickford
Essex
SS11 7AB
*** PLANNING APPROVED *** READY TO BUILD ***
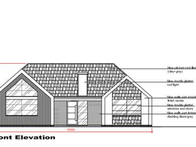
An exceptional opportunity to acquire a planning-approved residential building plot, offered plot only, with full planning permission granted for the construction of a high-quality three-bedroom detached bungalow.
This attractive and well-positioned plot provides a rare chance for self-builders, downsizers or developers to deliver a modern single-storey home without the delays and uncertainty associated with securing planning consent. The approved scheme offers a carefully considered layout designed to suit contemporary living while retaining broad market appeal.
The planning permission allows for the construction of a spacious three-bedroom detached bungalow, arranged over a single level and extending to approximately 153 sq m (where applicable). The design focuses on practicality, accessibility and generous internal proportions.
-The approved accommodation comprises:
-A large open-plan kitchen, dining and living area, designed as the central hub of the home
-Three well-proportioned double bedrooms
-Principal bedroom with en-suite shower room
-Separate family bathroom
-Central hallway providing excellent circulation
-Two useful storage cupboards
-Direct access to the garden from the main living space
The layout has been designed to maximise natural light and provide a strong connection between internal living areas and the garden, making it ideal for both everyday living and entertaining.
Please contact the office for further information.
Although these particulars are thought to be materially correct their accuracy cannot be guaranteed and they do not form part of any contract.
Property data and search facilities supplied by www.vebra.com