70d Watling Street
Radlett
Herts
WD7 7NP
Nestled on the desirable Watford Road in Radlett, this impressive property presents a unique opportunity for investors.
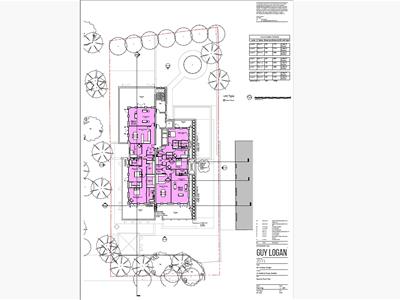
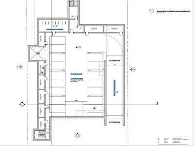
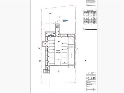
The property sits on an 0.51 acres and boasts full planning permission to demolish the existing house and construct eight modern three-bedroom flats ranging from 1661 to 2014sqft. The development will also have communal gardens and under ground parking for 16 cars making it an attractive prospect for those looking to develop in a sought-after area.
The location is ideal, providing easy access to local amenities, schools, and transport links, ensuring that residents can enjoy the best of both suburban tranquillity and urban convenience. With its spacious layout and potential for redevelopment, this property is a rare find in Radlett, appealing to a wide range of buyers.
GDV of circa £13.5m.
Although these particulars are thought to be materially correct their accuracy cannot be guaranteed and they do not form part of any contract.
Property data and search facilities supplied by www.vebra.com