10 The High Street
St Albans
AL3 4EL
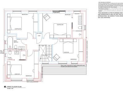
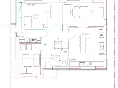
An exciting opportunity to acquire a four-bedroom detached home with approved planning permission for a substantial, energy-efficient redevelopment, ideally positioned on Barncroft Way, St Albans, backing directly onto a public park. The property occupies a generous plot and benefits from a private rear garden with gated access leading straight into the park, a rare and highly desirable feature offering open green space right on your doorstep. Planning permission has been granted for a comprehensive scheme including a two-storey front and side extension, a part-width single-storey front extension in line with the existing porch, and alterations to windows and doors to suit a modern internal arrangement. Internally, the property presents a blank canvas, offering buyers the opportunity to complete and personalise the home to their own specification, with the benefit of planning already in place. The location is particularly appealing, with a range of well-regarded schools close by and St Albans City Station within easy walking distance, providing fast links into London. An excellent opportunity to create a spacious, contemporary family home in a sought-after residential area.
Although these particulars are thought to be materially correct their accuracy cannot be guaranteed and they do not form part of any contract.
Property data and search facilities supplied by www.vebra.com