16 Churchgate
Loughborough
LE11 1UD
** OPEN DAY SATURDAY 24TH JANUARY 9AM - 11AM - VIEWINGS BY APPOINTMENT - CALL TO BOOK **
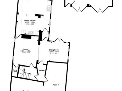
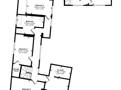
** UNIQUE COMMERCIAL AND RESIDENTIAL PROPERTY COMPRISING =
23 - VACANT COMMERCIAL SHOP FRONTED PREMISES - POTENTIAL INCOME £1,000 PCM.
23A - FOUR BEDROOM HOME - POTENTIAL TO CONVERT OR RENT OUT.
23B - ONE BED COACH HOUSE - CURRENT LETTING INCOME £750 PCM.
Situated in a prominent position on a bustling shopping street at the heart of this popular Soar Valley Village. Offering mains services, private driveway and garage, This property offers a unique opportunity for investors, developers or a family business.
Featuring gated access to a driveway, leading to a courtyard style garden and access to the garage.
• Identification and Proof of Funding Required – All Vendors and Purchasers must provide proof of identity in line with The Money Laundering, Terrorist Financing and Transfer of Funds Regulations 2017. We will provide an online link or ask for physical evidence. We must see evidence of funding, either before a viewing, or at the point of an offer being made or accepted.
• Accuracy of Details – All descriptions, measurements, and floor plans are for guidance only and should not be relied upon as statements of fact.
• Services & Appliances – These have not been tested; buyers should commission their own surveys or reports.
• Legal Verification – All information is provided in good faith, from online sources and our Vendors and must be confirmed by the buyer’s solicitor before agreeing to purchase.
• DMCC Act 2024 – We are committed to providing all material information to assist buyers in making informed decisions.
• Offers & Contracts – These particulars do not form part of any contract or offer. Fixtures and Fittings are by separate negotiation. Please ask a member of the team if you want to check if an item is to be included in the sale.
• Flood Risk and Mobile Phone Signal - To check the Internet and Mobile coverage you can use the following link: https://checker.ofcom.org.uk/en gb/broadband-coverage
• To check any Flood Risks you can use the following link: https://check-long-term-flood risk.service.gov.uk/postcode
• Can you recommend a Solicitor? – Yes, We can recommend a number of local solicitors who we believe look after our clients, Speak to a member of our team and we can put you in touch with a solicitor for a ‘no obligation’ quote.
• Can you recommend a Mortgage Advisor – Yes, We work closely with Ben York, of Chamelo Mortgages, who looks after our clients! Ask a member of the team to arrange an appointment or call for you.
• Can you help me to sell my property? – Yes, Richard can provide an up to date valuation and market appraisal of your property, ask a member of the team and we will book an appointment for you.
Although these particulars are thought to be materially correct their accuracy cannot be guaranteed and they do not form part of any contract.
Property data and search facilities supplied by www.vebra.com