625 Foxhall Road
Ipswich
Suffolk
IP3 8ND
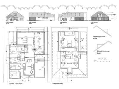
NO ONWARD CHAIN - LARGE DETACHED THREE BEDROOM BUNGALOW SITUATED ON 0.17 ACRES - INTEGRAL GARAGE AND PLENTY OF PARKING VIA IN AND OUT BLOCK PAVED DRIVEWAY - LARGE SECLUDED LANDSCAPED REAR GARDEN - POTENTIAL TO DEVELOP PLANNING APPROVED FOR CONVERSION TO FOUR / FIVE BEDROOM CHALET - SUPERB LARGE LOUNGE 18'11 x 10'3, SEPARATE DINING ROOM 10'11 x 10' AND LARGE CONSERVATORY 19'5 x 7'5 - KITCHEN/BREAKFAST ROOM 13'1 x 10'3- EXTENDED FIVE PIECE BATHROOM 16'7 x 6'7 - MAIN BEDROOM 19'9" x 10'3
***Foxhall Estate Agents*** are delighted to offer for sale this recently refurbished three bedroom detached bungalow in sought after IP5 location with garage and off road parking. Set in approximately 0.17 acres with a large secluded rear garden and planning permission in place for conversation to a four / five bedroom chalet, this is a superb opportunity for new owners.
The property currently comprises of three good size bedrooms, extra large size five piece bathroom, large lounge, separate diner, large conservatory and large kitchen/breakfast room. The property also benefits from a light and airy entrance hallway and an integral garage.
The property has recently been redecorated and also has had new carpets replaced in some of the rooms. At this stage the new owners have huge scope to either leave the bungalow as it is or to re-design the living accommodation and increase dramatically as there is approved planning for a conversion to a chalet bungalow which would see four / five bedrooms together with two further en-suite bathrooms and a cloakroom W.C. on top of a family bathroom.
To the front of the property is a fantastic in and out driveway which is block paved providing plenty of parking and access to the integral garage.
To the rear, you will find a fully landscaped secluded rear garden with mature trees and bushes, mainly laid to lawn with steps and also ramp access. There is a large passageway to the side to enable good access to the garden and a summerhouse to stay.
The property is in the popular Kesgrave area which has plenty of local amenities including supermarkets, local bus routes, good school catchments (subject to availability), easy access onto the A12 / A14 giving you access to Ipswich, Colchester or Woodbridge and Felixstowe.
The property is therefore awaiting new owners to fully put their stamp on the property and viewers should book an early internal viewing as to not miss out on this fantastic opportunity.
Attractive in and out front garden with an attractive mid height brick wall and fir trees to the front for seclusion, completely block paved suitable for parking 4/5 vehicles with access to the rear garden via a two pedestrian gates either side of the property, access to the integral garage with step up to the front door, there are a couple of borders with plants and mature bushes.
Open entrance with UPVC and double glazed door with window to the side and further double glazed window to the side, coving, laminate floor, recess area for shoes, boots etc which then leads into the entrance hallway.
New carpet flooring, radiator, doors to bedrooms one, two, three, family bathroom and lounge. There is a door to a storage cupboard with shelving and the fuse board, further cupboard on top and access to the loft (has a ladder, boarding and light).
5.77m x 3.12m (18'11" x 10'3")Feature fireplace with electric inset fire, shelving, carpet flooring, radiator, large double glazed bay window to the front with fitted slatted blinds, wall lights, two radiators, ceiling lights, aerial point, dimmer switches for both wall and ceiling lights and an archway through to the dining room.
3.33m x 3.05m (10'11" x 10'0")Carpet flooring, radiator, arch through to the kitchen / breakfast room, window to the side, wall lights, ceiling lights, aerial and phone point, coving, large double glazed patio doors to the rear which stretch the entire wall to give a lovely outlook onto the rear garden and a door to the integral garage.
3.99m x 3.12m (13'1" x 10'3")Comprises of wall and base units with cupboards and drawers under, worksurfaces over, stainless steel 1 1/2 sink bowl drainer unit with a mixer tap and pull out bowl and drainer, integrated Bosch oven and grill, space and plumbing for a washing machine, space for under counter fridge, coving, tiled walls to the main part, spotlights, inset lights, tiled flooring, double glazed window to the rear and side both fitted with Venetian blinds, double glazed UPVC obscure door out into the conservatory, Moffat cooktop hob with an extractor over the top.
5.92m x 2.26m (19'5" x 7'5")Comprises of UPVC and double glazed units with a UPVC roof, radiator, wall light, ceiling light, power and aerial point, French doors on both the rear and side aspect both leading out into the rear garden.
5.05m x 2.01m (16'7" x 6'7")This is the largest family bathroom that the valuer has seen for a long time it consists of five pieces, you have got to the far end an obscure double glazed window to the rear, low-flush W.C., bidet, panel bath with a mixer tap and handheld shower over, extractor fan, spotlights over the bath, tiled and wooden cladded walls, tiled floors, walk-in shower cubicle. To the front of the bathroom is a large wash hand basin inset into a vanity unit with plenty of cupboards under, inset mirrored cupboard with storage, further inset mirrors, light over, shaver point, fully tiled walls, heated towel rail. tiled floor and a cupboard housing the water tank.
With the main bedroom just next door this is a perfect opportunity to utilise this large space and potentially separate into a standard family bathroom and en-suite if the new owners required.
6.02m x 3.12m (19'9" x 10'3")This is where the rear of the bungalow has been extended creating an extremely large main bedroom which could be split into a dressing area, en-suite walk-in area if required, two radiators, new carpet flooring, coving, aerial and phone points. This could also be changed around so that this could become the lounge and the lounge could become a bedroom or dining room being as this is a bungalow there is a multitude of uses for each room. The main bedroom is also next to the extremely extended family bathroom this could be split to provide an en-suite for the main bedroom more easily than in a standard bungalow.
3.30m x 2.84m (10'10" x 9'4")Double glazed window to the front with fitted slatted blinds, coving, radiator and new carpet flooring.
3.45m x 1.96m (11'4" x 6'5")Double glazed window to the side, radiator and carpet flooring.
Fully landscaped rear garden, lovely and secluded with a large patio area which wraps around the rear of the house with a ornate wildlife pond, a good size side access with gate to the front with plenty of room to bring through bins, wheelbarrows, buggies, bikes, etc into the rear garden if required. There is an outside tap, a low wall and steps up to the main lawned area, there is a further circular patio area which has borders and shrubs around it, there is a summerhouse to stay and also a ramp that has been built-in to enable access to all to the rear garden, pedestrian gate to the other side of the garden with lots of mature shrubs, plants and trees. This is a superb un-overlooked sheltered private garden with hidden secluded areas to discover.
5.54m x 3.25m (18'2" x 10'8")With power and light and a manual up and over door, UPVC and glazed door out to the side and a double glazed window with fitted venetian blinds to the side. Therefore this could easily be converted to an office which is accessed via the front of the property if required.
Tenure - Freehold
Council Tax Band - D
This property is being sold by executors and whilst the vendor believes all facilities are in working order, they cannot warrant any aspect and the property is therefore to be sold as seen.
Although these particulars are thought to be materially correct their accuracy cannot be guaranteed and they do not form part of any contract.
Property data and search facilities supplied by www.vebra.com