Tamar View Nurseries
Carkeel
Saltash
Cornwall
PL12 6PH
BUILDING PLOT.
EXCITING DEVELOPMENT OPPORTUNITY - A level building plot in established and well respected residential area, providing the perfect opportunity for a self-build or developer with detailed planning for a detached 3 bedroom house of about 873 sq ft with parking and garden.
TOWN CENTRE - 0.75 MILE, RAILWAY STATION - 1.25 MILES, LOOE AND THE BEACH - 9 MILES, SALTASH - 14 MILES, PLYMOUTH - 20 MILES
Dennis Road is a popular area comprising a well established residential setting only 0.75 mile from the town centre or just over 1 mile to the mainline railway station, this combined with straightforward access to the A38 enables an easy commute to the major cities of Plymouth, Truro and Exeter.
The ancient stannary town of Liskeard with it's notable town centre architecture, offers the usual amenities including a hospital together with a range of shopping, educational and recreational facilities. The town of Saltash has a Waitrose store on its northern outskirts and long frontage to the tidal River Tamar with moorings (subject to availability) and a public slipway. Golf is available at Bindown, near Looe, also with a spectacular waterside course at Portwrinkle and at St Mellion International Resort with its leisure facilities.
The wide expanse and beaches of Whitsand Bay are within easy driving distance, providing opportunities for boating, sea fishing and other water sports. The City of Plymouth has an excellent shopping centre set against the historic waterside areas of The Barbican and Hoe.
In addition the southern foothills of Bodmin Moor and many places of immense natural beauty and historical interest lie a short distance away providing boundless leisure opportunities.
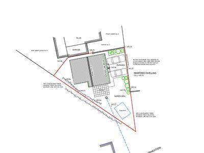
The plot has been cleared and foul drainage is connected, all other services are believed to be available closeby and will be subject to a connection charge. There is no Community Infrastructure Levy payable on this site.
Approval of Reserved Matters was granted on the 18th August 2025 under application number PA25/03976 and Building Regulation drawings are also available to enable immediate commencement of works. Copies of the plans and planning permission are available online through the Cornwall Council Planning Portal quoting the above application number or upon request by email from Scott Parry Associates.
Permission is granted for a dwelling of about 873 sq ft (81 sq m) (GIA) with the proposed accommodation to comprise - GROUND FLOOR - 20' Dual Aspect Kitchen/Dining Room - 16' Sitting Room - Cloakroom/WC - FIRST FLOOR - 3 Bedrooms (1 Ensuite) - Family Bathroom.
The drawings demonstrate offroad parking for two cars and ample garden space.
Using Sat Nav - Postcode - PL14 3NS
Although these particulars are thought to be materially correct their accuracy cannot be guaranteed and they do not form part of any contract.
Property data and search facilities supplied by www.vebra.com