41 The Square,
Titchfield
Fareham
PO14 4RT
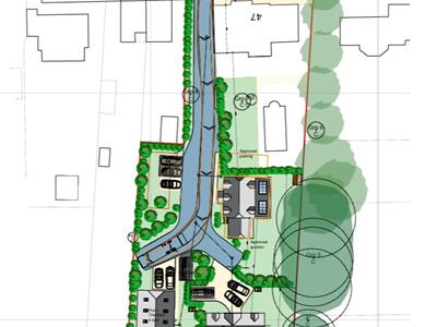
Plot 2 The Stables is a building plot located in the popular village of Titchfield with approved planning permission for a four bedroom detached family home circa 1,747 sq ft with an open plan kitchen/dining/living room, utility room, study, 4th bedroom with en-suite shower room, cloakroom/w.c. To the first floor the master bedroom benefits from an en-suite shower, there are a further two bedrooms and family bathroom, there is a south facing garden and the planning also incorporates a car port & parking for two cars to the front.
Fareham Borough Council Planning Ref: P/25/0856/FP
Titchfield itself is a beautiful unspoilt medieval village, home to the oldest Anglo-Saxon church in Hampshire. The village has a thriving community and people flock to the boutique shops, cafes and public houses to enjoy the relaxed and friendly vibe. Titchfield Haven Nature Reserve is on the outskirts of the village where you can walk to Hill Head Beach and Meon Shore, in addition there is a glorious walk along Brownwich Lane to Chilling Beach.
SUMMARY OF FEATURES:
Self-build plot available with full planning via Fareham Borough Council Ref: P/25/0856/FP; Four bedroom detached family home circa 1,747 sq ft with car port & parking for 2 cars; Open plan kitchen/dining/living room with utility, and study; Ground floor bedroom 4 with en-suite shower room; Master bedroom with en-suite shower room; Popular location in Titchfield.
GENERAL INFORMATION:
TENURE: Freehold; LOCAL AUTHORITY: Fareham Borough Council.
DISTANCES:
Titchfield Village Centre - 0.5 miles; Swanwick Station - 2.5 miles; Whiteley Shopping Centre - 3.3 miles; Fareham Centre - 3.5 miles; Titchfield Primary School - 1.1 miles; Henry Cort School - 2 miles; Brookfield Community School - 2.2 miles; Locks Heath Infant and Junior School - 1.3 miles
Although these particulars are thought to be materially correct their accuracy cannot be guaranteed and they do not form part of any contract.
Property data and search facilities supplied by www.vebra.com