Lowton Business Park, Newton Road, Lowton
Warrington
WA3 2AP
JonesPottsTaylor are pleased to present TO LET these TWO separate COMMERCIAL light industrial units, within the Newsome Mill Complex, approximately 1 mile to the south of Huddersfield Town centre. These units benefit from having the flexibility to be joined as one single unit.
UNIT C - 1557 sqft - £11,000PA
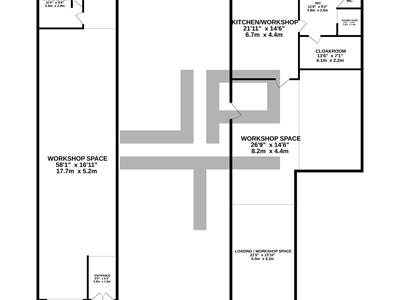
This ground floor premises comprises of entrance through a roller protected pedestrian door or a roller drive-in loading door, workshop / warehouse / office space including kitchen, segregated toilets, shower room. Car parking is on-street within the vicinity.
UNIT D - 1168 sqft - £9,000PA
This ground floor premises comprises of entrance through a roller protected pedestrian door, workshop / warehouse / office space including kitchen and W.C. Car parking is on-street within the vicinity.
UNIT C/D - 2726 sqft - £19,000PA
Both these ground floor units combined
UNIT F - 680 sq ft - £6,500 PA
This ground floor premises comprises of entrance through a roller protected pedestrian door, workshop / warehouse / office space including W.C. Car parking is on-street within the vicinity.
These units would suit a wide range of businesses including offices, stores, light manufacturing, showroom space and more. (subject to individual requirements and relevant planning consent)
Viewings are highly recommended and will be required and under a viewing schedule.
Although these particulars are thought to be materially correct their accuracy cannot be guaranteed and they do not form part of any contract.
Property data and search facilities supplied by www.vebra.com