82 Blackdyke Road
Kingstown Industrial Estate
Carlisle
Cumbria
CA3 0PJ
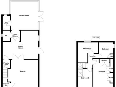
Vicinity Homes are delighted to offer to the market this spacious three bedroom semi detached house situated on a generous sized corner plot in a popular residential area to the East of Carlisle City Centre. The property is close to a range of local amenities, regular bus routes, popular Primary & Secondary Schools and has excellent access to the City Centre and the M6. The accommodation briefly comprises of an entrance hallway, lounge, dining kitchen, inner hallway, cloakroom/WC, utility room and a large conservatory. To the first floor there are three bedrooms and a modern bathroom. The property also benefits from double glazing, central heating, front garden and a spacious side/rear garden. An ideal purchase for a first time buyer or a family! Viewing is absolutely essential to fully appreciate the accommodation on offer. The property is offered to the market with no onward chain.
Proceed East along Warwick Road and turn right onto Greystone Road. Turn right onto Norman Street and continue straight ahead onto Vasey Crescent. Follow the road and the property is situated on the left hand side.
Approached by a door to front, incorporating a radiator, laminate floor and stairs to the first floor.
4.076m x 3.635m (13'4" x 11'11")Incorporating a double glazed window to front, electric heater, french doors to the dining kitchen and a feature fireplace with surround, inset and hearth.
5.484m max x 4.298m max x 2.711m min (17'11" max xIncorporating a range of fitted wall and base units with complementary work surface over, breakfast bar, integrated and integrated hob with cooker hood over. Tiled splash areas, sink unit with mixer tap, integrated dishwasher, space for a fridge/freezer, double glazed window to side and door to side. Radiator, tiled floor, under stairs storage cupboard and double glazed french doors to the conservatory.
Incorporating laminate floor.
1.517m x 0.996m (4'11" x 3'3")Incorporating a wash hand basin, WC, obscured window to side, radiator and laminate floor.
1.928m x 1.230m (6'3" x 4'0")Incorporating plumbing for a washing machine, space for a tumble drier, work surface and double glazed obscured window to rear.
5.283m x 3.560m (17'3" x 11'8")Incorporating double glazed french doors to side, two radiators and laminate floor.
Incorporating loft access with a pull down ladder.
3.662m x 2.587m (12'0" x 8'5")A double bedroom incorporating a double glazed window to front, radiator, fitted wardrobe/storage and laminate floor.
3.515m max x 2.719m max (11'6" max x 8'11" max)A double bedroom incorporating a double glazed window to rear and a radiator.
2.637m max x 2.790m max (8'7" max x 9'1" max)Incorporating a double glazed window to front and a radiator.
2.709m x 1.819m (8'10" x 5'11")Incorporating a modern three piece suite comprising of a bath with waterfall shower over & shower attachment, wash hand basin set to vanity unit and WC. Double glazed obscured window to side, radiator, splash backs, laminate floor and built in storage cupboard.
The property is approached by a front garden with shillied areas and gated access to the side. To the side & rear of the property there is a spacious garden with lawn area, patio seating area, flower & shrub beds, outside tap and outside power point.
Please note, the floor plan is not to scale and should be used for illustrative purposes only.
https://find-energy-certificate.service.gov.uk/energy-certificate/8335-1022-3209-0241-9292
The property is Freehold.
The property is in Council Tax Band A.
Strictly through arranged appointments by Vicinity Homes. To arrange a viewing, please contact: T: 01228 599011 or E: sales@vicinityhomes.co.uk.
We routinely refer potential purchasers to Mortgage Advisers - Fisher Financial Associates. It is your decision whether you choose to deal with Fisher Financial Associates. In making that decision, you should know that we will receive commission from the company worth approximately £50 depending on any business written.
Referral Fees - Vicinity Homes work with preferred conveyancers for a house sale or purchase. You are under no obligation to use their services. Should you choose to use them, Vicinity Homes Estate Agents will receive a referral fee of between £120.00 to £150.00 on completion of a sale or purchase.
These particulars, whilst believed to be accurate, are set out for guidance only and do not constitute any part of an offer or contract - intending purchasers should not rely on them as statements or representations of fact, but must satisfy themselves by inspection or otherwise as to their accuracy. All electrical appliances mentioned in these details have not been tested and therefore cannot be guaranteed to be in working order.
To register your buying information and receive updates on all our available properties, please contact Vicinity Homes on 01228 599011 or via email to sales@vicinityhomes.co.uk.
We would be pleased to provide you with a free, no obligation valuation for your home. Please contact Vicinity Homes on 01228 599011 or via email to sales@vicinityhomes.co.uk to arrange an appointment.
Although these particulars are thought to be materially correct their accuracy cannot be guaranteed and they do not form part of any contract.
Property data and search facilities supplied by www.vebra.com