Suite 1 Albion House,
No.2 Etruria Office Village,
Forge Lane,
Festival Park
Stoke-on-Trent
ST1 5RQ
Former 7 Bedroom Period House
Expired Planning permission for 8 apartments
For Sale By Auction at 6.30 pm on Monday 26th January 2026
at the Double Tree By Hilton Hotel, Festival Park, Stoke-on-Trent, ST1 5BQ
Contact the Auction Team to Register: 0800 090 2200 or auction@bjbmail.com
Grade II Listed 7 Bedroom House.
Expired planning permission for conversion to 8 Apartments.
Dated: 19/08/2020 Ref: TWC/2020/0329.
The site benefits from the nearby Tesco Superstore (0.1 Miles), the local primary school (0.2 Miles) and everyday amenities within 0.5 Miles , along with good transport connections via local bus services to Telford town centre (0.2 Miles) and the A442 into Telford and beyond.
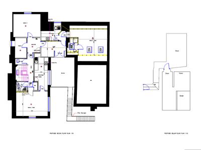
The expired scheme comprises the following:
7 x 1 Bed apartments (approx. 56 Sq. m per apartment)
1 x 2 Bed apartments (85 Sq. m)
GDV based on expired planning = £1,110,000
Rental value based on expired planning = £73,800 Pa
Comparable Evidence available on request
Any sizes / measurements quoted by BJB are correct to the best of our knowledge, however we would recommended all interest parties carry out their own checks before relying on any information provided.
The site benefits from the expired planning consent for Conversion of the building into 8no. self contained flats and installation of 2no. new windows dated 16/04/2020 (Ref; TWC/2020/0329 ). A full info pack is available on request which includes the following:
- Decision Notice
- Floorplans
- Elevations
- BJB Comparable Evidence
NB: Whilst BJB will try and supply as much information as we can about the planning status of the land / property, please be mindful that we are not planning consultants and accordingly it is important that prospective purchasers ensure they have inspected the land / property and rely upon their own enquiries, assessments and due diligence with regards to the planning status and current or potential uses. All information is supplied in good faith and BJB cannot be held liable for any errors or omissions.
The site is located in the Council district of Telford & Wrekin Council https://www.telford.gov.uk/site/
Freehold with vacant possession upon completion.
All prices quoted by Butters John Bee are exclusive of VAT unless otherwise stated. We have been advised by our Client that VAT in NOT applicable, however all interested parties should make their own enquiries to satisfy themselves with the VAT position.
This property is sold subject to our Common Auction Conditions (a copy is available on request).
A buyers administration fee of £1,800 including VAT is applicable to this lot. The purchaser will pay the fee whether the property is bought before, at or following the auction date.
Purchasing a property at auction is a firm commitment that carries the same legal implications as a signed contract by private treaty. It is important that you consult with your legal adviser before bidding and also your accountant regarding the impact of VAT, if applicable, on the sale price. The legal pack can be viewed online via our website www.buttersjohnbee.com. Legal packs can also be viewed at the selling office. These documents should be passed to your legal adviser as they will help you make an informed decision about the lot. If you need further legal information please contact the vendor's solicitor whose details will be in the auction catalogue. Remember that you buy subject to all documentation and terms of contract whether or not you have read them.
Check the latest addendum at buttersjohnbee.com for any alterations or changes to the catalogue.
We are pleased to announce that we are now back in the Auction room at the Double Tree Hilton Hotel (Moat House). However, we also have the other bidding options available: On-Line / Telephone / By-Proxy. You will need to register in advance and provide two forms of ID. Register at www.buttersjohnbee.com/auction or contact the Auction Team on 0800 090 2200 or auction@bjbmail.com.
Please refer to the auction pack in respect of any legal fees or search fees which may be due upon exchange or completion.
Please note that a deposit of 10% of the purchase price (Min £3,000) will be due on Exchange of Contracts, whether the land / property is sold prior to Auction, in the Auction room or after the Auction.
Strictly By Appointment with the BJB Land & New Homes Team
Joe Boulton
Assistant Land Manager
Land & New Homes Team
residential-land@bjbmail.com
01782 211147
Please note that not all land & development opportunities will appear on our website. To ensure that you do not miss out on these opportunities please e-mail: residential-land@bjbmail.com or call the Land & New Homes team to discuss your requirements.
Although these particulars are thought to be materially correct their accuracy cannot be guaranteed and they do not form part of any contract.
Property data and search facilities supplied by www.vebra.com