8, The Quadrant
Buxton
Derbyshire
SK17 6AW
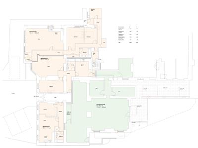
A rare opportunity to acquire a substantial mixed-use property forming the lower ground floor of the former George Hotel, in a prime town centre location close to shops, amenities, and transport links. Extending to approximately 4,670 sq ft, the property has planning permission to create one commercial unit alongside three self-contained apartments. The proposed layout offers a commercial space of around 1,893 sq ft, two one-bedroom apartments, and a three-bedroom apartment, all served by a central entrance hall and communal lobby, with off-road parking for each unit.
The property benefits from Planning Permission HPK/2024/0308 and Listed Building Consent HPK/2024/0309 for conversion into three apartments and a commercial unit for use as a café/restaurant falling within use class E b). Further details can be found on High Peak Borough Council Planning portal.
https://www.highpeak.gov.uk/article/312/Search-and-track-planning-applications
Long Lease with potential for Freehold
1.78m x 4.67m (5'10 x 15'4)
9.19m x 5.64m (30'2 x 18'6)
2.79m x 5.59m (9'2 x 18'4)
11.13m x 8.74m (max) (36'6 x 28'8 (max))
6.88m x 3.86m (22'7 x 12'8)
4.06m 5.51m (13'4 18'1)
6.88m x 4.88m (max) (22'7 x 16 (max))
4.47m x 2.74m (14'8 x 9 )
14.25m x 4.78m (46'9 x 15'8)
7.37m x 8.41m (24'2 x 27'7)
2.11m x 6.83m (6'11 x 22'5 )
3.66m x 3.71m (12 x 12'2)
4.42m x 3.20m (14'6 x 10'6)
Although these particulars are thought to be materially correct their accuracy cannot be guaranteed and they do not form part of any contract.
Property data and search facilities supplied by www.vebra.com