Premium Plots Within The Desirable East Broomlands Development Benefiting With Excellent Links to the Town and Beyond.
A traditional three bedroom detached family home with uninterrupted views
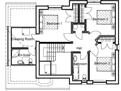
A popular three double bedroom house. The kitchen is located to the rear and has space for a breakfasting area with access to the utility room and integral garage. The dining room is located to the front. The master bedroom has a dressing room and en-suite shower room with velux window. There is a family bathroom and plenty of storage on the first floor.
East Broomlands is prestigious development of houses and bungalows situated on the rural boundaries of Kelso, adjacent to the River Tweed. Each home at East Broomlands is traditionally styled and built to the highest standard with generous gardens and the colour and calm of the surrounding countryside on your doorstep.
Kelso, which lies at the meeting point of the Tweed and Teviot rivers, is one of the most attractive and unspoiled towns in the Borders. Notable features are the 12th Century Abbey, the Flemish style cobbled square, Floors Castle and the old bridge across the Tweed. The town has good educational and sporting facilities and many quality shops. The area has much to offer those interested in country pursuits with fishing on the Tweed and is an increasingly sought after location within the Borders.
LOWER FLOOR
Living Room 4.60m x 5.30m (15' 1" x 17' 5")
Dining Room 4.60m x 2.80m (15' 1" x 9' 2")
Kitchen / Casual Dining 3.44m x 3.50m (11' 4" x 11' 6")
W.C 1.13m x 2.15m (3' 9" x 7')
Utility Room 2.67m x 2.05m (8' 9" x 6' 9")
Garage 2.75m x 5.50m (9' 9" x 5' 10")
UPPER FLOOR
Bedroom 1 3.47m x 3.53m (11' 5" x 11' 7")
En-Suite 1 2.67m x 1.70m (8' 9" x 5' 7")
Dressing Room 2.67m x 2.18m (8' 9" x 7' 2")
Bedroom 2 3.16m x 3.41m (10' 5" x 11' 2")
Bedroom 3 2.80m x 4.00m (9' 3" x 13' 2")
Bathroom 1.68m x 2.97m (5' 6" x 9' 9")
A prime cost sum is allowed for a fitted kitchen and utility room with the option to include the following appliances; gas/electric hob, gas/electric oven, canopy extractor vented externally, fully integrated dishwasher, fully integrated fridge/freezer, washing machine and tumble dryer.
Ceilings will be smooth and finished in white with a choice of colours for walls. A prime cost sum is allowed for a feature gas fireplace and surround. Quality ceramic tiles from a predetermined range will be fitted in the kitchen. In the bathroom and en-suite tiling will be to dado height with wall boards to the shower areas. Recessed downlights will be fitted to the kitchen, bathroom and en-suite.
TV points will be fitted to the living room, kitchen and bedrooms. The TV aerial is provided in the attic, but not satellite. Kitchen appliances will be controlled via individual switch points and under-unit lighting to selected kitchen wall units will be provided. Mains wired smoke alarms will be fitted and an approved alarm security system will also be fitted. An integral vacuum system will be installed throughout the house with the exhaust ducted externally. Central heating and hot water are supplied through a condensing gas boiler with the hot water via a Megaflow unvented system which allows balanced mains water pressure to the hot and cold, including fresh drinking water. Individual thermostatic controls will be fitted to control the ground floor underfloor heating and first floor radiators. An independent immersion heater provides water heating backup.
Quality internal doors will be prefinished moulded oak with fitted quality brass ironmongery. Wardrobes will be fully fitted with hanging rails and shelving. External doors are timber.
Windows will be high performance double glazed uPVC.
The front garden will be laid to lawn and the drive will be paved. The side and rear garden will be left as topsoil, providing a blank canvas.
Mains water, drainage, gas and electricity.
This property is being sold off plan.
To visit M & J Ballantyne's website please click on https://www.mjballantyne.co.uk/
To arrange a viewing contact the selling agents, Hastings Property on 01573-225999
Plot 54 - £475,000
Offers are invited and should be submitted to the Selling Agents, Hastings Property Shop, 28 The Square, Kelso, TD5 7HH, 01573 225999, Fax 01573 229888. The seller reserves the right to sell at any time and interested parties will be expected to provide the Selling Agents with advice on the source of funds with suitable confirmation of their ability to finance the purchase.
Although these particulars are thought to be materially correct their accuracy cannot be guaranteed and they do not form part of any contract.
Property data and search facilities supplied by www.vebra.com