8 The Cross
Neston
Cheshire
CH64 9UB
No Chain
Vista Abode are delighted to present this two-bedroom end of terraced property, perfectly situated in an excellent location with superb transport links to Liverpool, Chester and Manchester. This home has been recently redecorated and fitted with new carpets throughout, making it an ideal first-time purchase or a Buy-to-Let investment. With the added benefit of a modern fitted kitchen and bathroom, it offers everything a buyer could wish for.
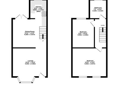
The property opens into a spacious and bright living room that flows naturally into the dining area and kitchen. The dining room features French doors leading out to the rear yard, creating a seamless connection between indoor and outdoor living. The kitchen is galley style, fitted with a range of base and wall units, complemented by stylish worktops and a practical sink area. Upstairs, there are two generously sized double bedrooms and a well-appointed bathroom, providing comfortable and versatile living space.
To the rear, the property boasts a large yard, offering excellent outdoor potential. With its fresh décor, modern fittings, and thoughtful layout, this home is ready to move straight into. Early viewing is highly recommended to fully appreciate all that this property has to offer.
4.24m x 3.56m (13'11 x 11'8)A bright open space with UPVC double glazed front door, window to front elevation, and radiator.
4.24m x 3.58m (13'11 x 11'9 )UPVC French Doors leading through to rear garden and radiator.
3.96m x 2.06m (13'0 x 6'9)Galley style kitchen with a range of base and wall units, complimentary worktops, sink and window to rear elevation.
4.24m x 3.58m (13'11 x 11'9 )Window to front elevation and radiator.
3.58m x 2.69m (11'9 x 8'10)Window to rear elevation and radiator.
2.18m x 2.11m (7'2 x 6'11)Round bath, shower, sink unit, WC, window to rear elevation, and radiator.
Although these particulars are thought to be materially correct their accuracy cannot be guaranteed and they do not form part of any contract.
Property data and search facilities supplied by www.vebra.com