Senate House
Tyndall Avenue
Bristol
BS8 1TH
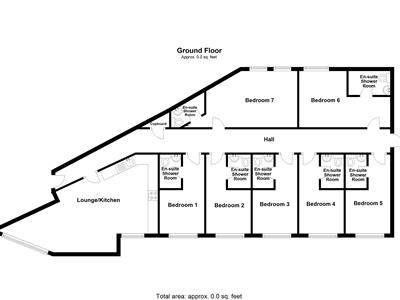
Flat 5 Classic House, Bristol, BS1 3TB (7 BED)
We are delighted to be marketing a recently built large furnished 7 double bedroom student property with ensuite shower room in each bedroom. Located on an upper floor, the property consists of an open plan kitchen lounge with white goods to include an electric hob and oven, microwave oven and grill, 2 freestanding fridge freezers, dishwasher, washer dryer and flat screen TV.
All double bedrooms are furnished with double beds with under bed storage, wardrobe with built in drawers, bedside cabinet, desk and chair. This property has solar panels which will contribute to the cost of the electric bills.
The property is conveniently located in the popular Stokes Croft area, in Bristol City Centre. Bus routes in very close proximity. Other similar flats available within the same building.
The property is finished to a high standard with double glazed windows and air conditioning throughout.
Tenants are responsible for checking internet speeds at the property to ensure they meet personal requirements.
Bills - Not included unless stated above (However third party all-inclusive bill options are available for an additional cost).
Although these particulars are thought to be materially correct their accuracy cannot be guaranteed and they do not form part of any contract.
Property data and search facilities supplied by www.vebra.com