4 Glumangate
Chesterfield
Derbyshire
S40 1QA
Nestled in the serene surroundings of Wallingwells Lane, Worksop, this exceptional detached bungalow presents a unique opportunity for those seeking a tranquil lifestyle. Set on an expansive six-acre plot, the property boasts a harmonious blend of beautiful woodland, a picturesque lake, and lush grassland, creating an idyllic retreat from the hustle and bustle of everyday life.
The bungalow features four spacious bedrooms, providing ample accommodation for families or guests. With one well-appointed reception room, the home offers a warm and inviting atmosphere, perfect for relaxation and entertaining. The two bathrooms ensure convenience and comfort for all residents.
A notable highlight of this property is the inclusion of stables and outbuildings, making it an ideal choice for equestrian enthusiasts or those in need of additional storage space. Furthermore, the swimming pool room, complete with a bedroom, kitchen, and shower room, adds a touch of luxury and versatility, allowing for leisure and recreation right at home.
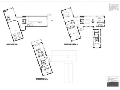
The property has partially granted planning consent for the bungalow to be demolished and replaced with a large detached dwelling (subject to bat and arboricultural reports) offering exciting possibilities for future development, if required. The enchanting location truly needs to be seen to be appreciated, as it provides a rare opportunity to enjoy both privacy and natural beauty.
In summary, this detached bungalow on Wallingwells Lane is a remarkable find, combining spacious living with stunning outdoor surroundings. A viewing is highly recommended to fully grasp the potential and charm this property has to offer.
This is carpeted and provides access to Bedroom One, Bathroom, Bedroom Two, Utility Room, Kitchen Diner and the first floor via stairs.
3.18m x 4.42m (10'5" x 14'6")A spacious double bedroom located towards the front of the property. It has carpeted flooring and a large double glazed window with radiator below.
3.35m x 2.80m (10'11" x 9'2")A large family Bathroom which has tiled flooring and a large double glazed window with radiator below. There is a low flush WC, Sink with storage below, Bath tub and large corner shower cubicle with electric shower.
3.38m x 3.37m (11'1" x 11'0")A spacious double bedroom which has carpeted flooring and a large double glazed window with radiator below.
5.68m x 3.32m (18'7" x 10'10")A spacious Kitchen Diner which has tiled flooring, and large, dual aspect double glazed windows. There are ample wall and base units incorporating a spacious worktop with sink and drainer with mixer tap over, integrated double oven and space for a dishwasher and fridge freezer.
5.68m x 4.26m (18'7" x 13'11")A large Living Room with carpeted flooring multifuel burner and three double glazed windows. There is also the added benefit of double glazed sliding doors leading out to the Gardens.
2.39m x 5.92m (7'10" x 19'5")A great addition to the Bungalow with access to the gardens and fantastic views.
4.60m x 3.53m (15'1" x 11'6")Including WC
13.54m x 6.24m (44'5" x 20'5")With heated indoor swimming pool
2.11m x 1.56m (6'11" x 5'1")
8.16m x 2.07m (26'9" x 6'9")
The property sits beautifully in substantial gardens extending to somewhere in the region of approximately 6 acres.
Planning Permission is in the process of being granted for the demolition of the existing property and the erection of a substantial detached family home in it's place.
Please see Bassetlaw District Council Planning Portal, reference 25/00457/FUL
Band E
Bassetlaw District Council
47/E
Strictly by appointment with the selling agent. Please contact Rachael Grange on 01246 232156 / rachael@wtparker.com
Although these particulars are thought to be materially correct their accuracy cannot be guaranteed and they do not form part of any contract.
Property data and search facilities supplied by www.vebra.com