Located in the popular Watkins Square, Llanishen, Cardiff, this well presented mid-terrace house offers a perfect blend of comfort and modern living. With four spacious bedrooms, this property is ideal for families or those seeking extra space for guests or a home office.
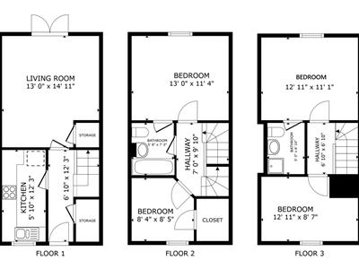
To the ground floor is the hallway - cloaks/wc, fitted kitchen with appliances and a good sized lounge with patio doors leading to an enclosed rear garden featuring a storage shed, low-maintenance astroturf lawn, a paved patio area, and a covered seating space.
There are two bedrooms to the first floor with family bathroom and en suite bathroom to the master.There are a further two bedrooms to the third floor - again with an en suite to one of the bedrooms. Each bathroom is fitted with contemporary modern fixtures and fittings.
Llanishen is a vibrant community with excellent local amenities, including shops, schools, and parks, making it an ideal location for families. The area is well-connected to Cardiff city centre, providing easy access to a wealth of cultural and recreational activities.
The property is available from 19th December and is being offered on a furnished basis for £1800 pcm. Deposit £1900. Council Tax Band F. EPC Rating TBC.
Although these particulars are thought to be materially correct their accuracy cannot be guaranteed and they do not form part of any contract.
Property data and search facilities supplied by www.vebra.com