53 King Street
Whalley
Lancashire
BB7 9SP
APPLICATION REFERENCE NUMBER: 10/24/1024 (Full plans and further details can be accessed via
Blackburn with Darwen planning portal).
This site provides a brilliant opportunity for a developer to create a pair of houses that would be highly sought after on the open market.
The location of the plot is within easy each of Corporation Park and Blackburn town centre and all of its fantastic amenities.
Viewing of the plot is available from the roadside but due to the lay of the land we ask that no one enters the site and there is currently a steep drop at the end of the plot.
Full planning has been passed and building work can begin as soon as possible.
**There will be 1% + VAT fee to be paid on the sale being agreed by the buyer - this will be deducted from the final sales price on completion - completion is required within 2 months from receipt of draft contracts**
The proposal site is currently a piece of underdeveloped scrub land situated to the eastern side of Leopold Road, Blackburn. The land levels drop significantly from the front to the rear of the site, and has recently been cleared of trees and overgrown vegetation.
The surrounding area is predominately residential in nature. On the north-west side of Leopold Road are single storey detached dwellings, and to the west side of Albany Road are semi-detached dwellings. Part of the site towards the northern boundary lies within the Corporation Park Conservation Area.
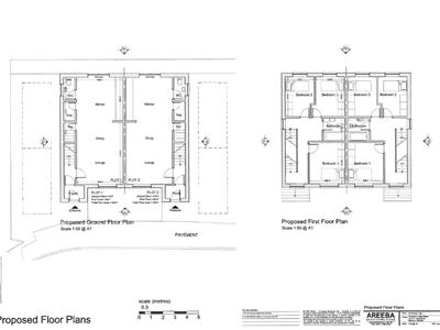
Planning permission has been granted for the erection of a pair of two storey semi-detached dwellings (C3) with associated off-street parking and garden areas. Each dwelling will comprise of three bedrooms with dual pitched roofs and front porches and each property will be approximately 92m2 (990 Sq Ft)
Although these particulars are thought to be materially correct their accuracy cannot be guaranteed and they do not form part of any contract.
Property data and search facilities supplied by www.vebra.com