949 - 951 Ecclesall Road
Sheffield
South Yorkshire
S11 8TN
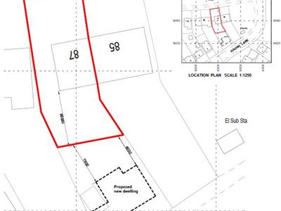
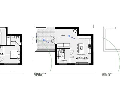
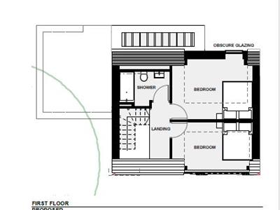
A rare opportunity to purchase a superb building plot with full planning permission for a contemporary three-bedroom detached house of approximately 1,216 sq.ft. Designed to offer spacious accommodation over three floors, the approved plans include an open and versatile living layout, three well-proportioned bedrooms, and modern architectural styling throughout. The plot is found at the rear of 87 Knowle Lane (Also listed online as a separate listing)
The proposed home benefits from a generous private garden of approximately 753 sq.ft along with an impressive terrace of around 140 sq.ft, perfect for outdoor dining, entertaining and enjoying the surrounding greenery. Access to the plot is via Haugh Lane (S11), providing a tucked-away setting while remaining exceptionally well-connected.
Situated in a fantastic and highly sought-after location, the plot is close to excellent schools, convenient transport links, and a wide range of local amenities. Within easy reach are beautiful green spaces and countryside walks offering an ideal balance of city living and natural surroundings.
Also available for sale is 87 Knowle Lane, which adjoins the plot, presenting a unique opportunity for buyers wishing to acquire both the existing house and the development plot together.
This is an outstanding chance to create a bespoke family home in one of the area’s most desirable neighbourhoods, with planning permission already in place.
Although these particulars are thought to be materially correct their accuracy cannot be guaranteed and they do not form part of any contract.
Property data and search facilities supplied by www.vebra.com