23 Whitburn Street
Bridgnorth
Shropshire
WV16 4QN
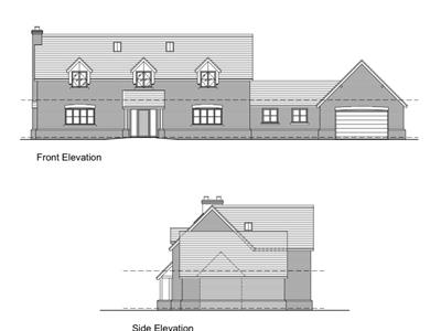
RARE TO FIND BUILDING PLOT in this Area Of Outstanding Beauty along the Corvedale between Craven Arms, Ludlow, Much Wenlock and Bridgnorth. Planning permission has been granted for a large, four bedroom detached home with a double garage.
Much Wenlock - 9 miles, Church Stretton - 8.5 miles, Ludlow - 11 miles, Bridgnorth - 14 miles, Shrewsbury - 22 miles. Telford - 18 miles, Welshpool - 31 miles.
(All distances are approximate).
The site is elevated above the B4368 with far reaching views to the Clee Hills near to the village of Diddlebury. This is a semi-rural location benefiting from easy access to the wider road network, with a choice of local pubs and popular eateries. The area has an abundance of rural walks and bridleways and is in easy reach of Cardingmill Valley and Church Stretton for the more ambitious hill walkers. The near by market town Much Wenlock provides everyday amenities and shopping along with healthcare facilities, schools, sporting, leisure and social clubs. Further shopping can be found in Ludlow with it's renowned food centre and weekend markets.
Planning ref; 24/03939/REM (Dwelling Adj Sun Inn Corfton Shropshire) Passed in October 24.
Discharge of conditions: 25/03441/DIS
GROSS INTERNAL FLOOR AREA:
Ground Floor - 141.8sqm
First Floor - 93.9sqm
Total Internal Area - 236sqm
PLEASE NOTE THE IMAGES DISPLAYED ARE FOR DEMONSTRATION PURPOSES ONLY
This is a large plot with the house positioned almost central to take advantage of the views and provide a sweeping driveway to the front. There are fields to the rear and neighbouring houses either side - a comfortable distance.
The planning permission has approved a traditional constriction detached residence with a linked double garage.
The accommodation is most spacious, with far reaching views to the front. Briefly comprising: Entrance hall with turning staircase to the first floor, lounge, with bi-folding doors to the rear, open plan full depth dining, living, kitchen, guest WC, large utility and on the first floor: principle suite with dual aspect, dressing area, ens-suite, three further bedrooms and house bathroom.
The site is FREEHOLD
We have been advised water and electric are on site. A purchaser would need to install their own drainage and heating source.
STRICTLY BY APPOINTMENT through the BRIDGNORTH OFFICE
Travelling towards Craven Arms on the B4368, continue past the turning on the left to Diddlebury village (Mill Lane), and continue for around 0.3 of a mile where the plot is on the right hand side (opposite a cluster of houses). There is a drive and gate up to the plot, but sufficient parking on the curb.
For personal development and occupation, there is no CIL payment. If the land is purchased for development and sold to a new buyer, there is a CIL payment to Shropshire Council. Please enquire for details.
Although these particulars are thought to be materially correct their accuracy cannot be guaranteed and they do not form part of any contract.
Property data and search facilities supplied by www.vebra.com