82 Blackdyke Road
Kingstown Industrial Estate
Carlisle
Cumbria
CA3 0PJ
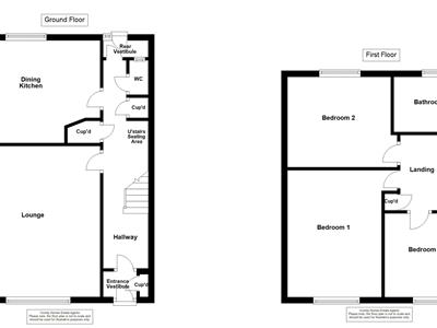
Vicinity Homes are delighted to offer to the market this immaculately presented & deceptively spacious, three bedroom mid link house situated within a popular residential area to the East of Carlisle City Centre. The property is close to a range of local amenities, regular bus route, popular Primary & Secondary Schools and has excellent access to the City Centre and the M6 Motorway. The accommodation briefly comprises of an entrance vestibule, hallway with seating area, cloakroom/WC, lounge, rear vestibule and a dining kitchen. To the first floor there are three bedrooms and a bathroom. The property also benefits from double glazing, central heating, front garden and rear garden. Viewing is absolutely essential to fully appreciate the accommodation on offer. An ideal purchase for first time buyers, buy to let investor or a family! The property is offered to the market with no onward chain.
Proceed East along Warwick Road. Turn right at the traffic lights onto Eastern Way. Turn right onto Durranhill Road and left at the round about. Continue on this road. Turn left onto Geltsdale Avenue and left again onto Cumrew Close. Follow the road to the right, the property is situated on the right hand side and can be identified by our "For Sale" sign.
Approached by a door to front, incorporating tiled floor and built in storage.
Incorporating a radiator, vinyl flooring, radiator, under stairs seating area, stairs to the first floor and two good sized storage cupboards.
5.047m x 3.715m (16'6" x 12'2")Incorporating a double glazed window to front, radiator, coving to the ceiling and a feature fireplace.
1.793m x 0.793m (5'10" x 2'7")Incorporating a wash hand basin set to vanity unit, WC, double glazed window to rear and tiled splash areas.
3.685m x 3.360m (12'1" x 11'0")Incorporating a range of fitted wall and base units with complementary work surface over, integrated oven and integrated hob with cooker hood over. Tiled splash areas, 1.5 sink unit with mixer tap, plumbing for a washing machine, plumbing for a dishwasher and space for a fridge/freezer. Double glazed window to rear, radiator, tiled floor and coving to the ceiling.
Incorporating tiled floor, space for a tumble dryer and door to rear.
Incorporating a built in storage cupboard and loft access.
4.431m x 2.886m (14'6" x 9'5")A double bedroom incorporating a double glazed window to front, radiator and coving to the ceiling.
3.087m x 3.540m (10'1" x 11'7")A double bedroom incorporating a double glazed window rear, radiator and coving to the ceiling.
2.716m x 2.306m (8'10" x 7'6")Incorporating a double glazed window to front, radiator and coving to the ceiling.
2.024m x 1.677m (6'7" x 5'6")Incorporating a three piece suite comprising of a bath with mixer tap & shower over, pedestal wash hand basin and WC. Double glazed obscured window to rear, heated towel rail, tiled floor, tiling to all walls and coving to the ceiling.
The property is approached by a shillied front garden. To the rear of the property there is a good sized garden with patio seating area, lawn area, outside tap and gated access to the rear.
Please note, the floor plan it not to scale and should be used for illustrative purposes only.
https://find-energy-certificate.service.gov.uk/energy-certificate/0849-2859-7457-9076-9405
The property is Freehold.
The property is in Council Tax Band A.
Strictly through arranged appointments by Vicinity Homes. To arrange a viewing, please contact: T: 01228 599011 or E: sales@vicinityhomes.co.uk.
We routinely refer potential purchasers to Mortgage Advisers - Fisher Financial Associates. It is your decision whether you choose to deal with Fisher Financial Associates. In making that decision, you should know that we will receive commission from the company worth approximately £50 depending on any business written.
Referral Fees - Vicinity Homes work with preferred conveyancers for a house sale or purchase. You are under no obligation to use their services. Should you choose to use them, Vicinity Homes Estate Agents will receive a referral fee of between £120.00 to £150.00 on completion of a sale or purchase.
These particulars, whilst believed to be accurate, are set out for guidance only and do not constitute any part of an offer or contract - intending purchasers should not rely on them as statements or representations of fact, but must satisfy themselves by inspection or otherwise as to their accuracy. All electrical appliances mentioned in these details have not been tested and therefore cannot be guaranteed to be in working order.
To register your buying information and receive updates on all our available properties, please contact Vicinity Homes on 01228 599011 or via email to sales@vicinityhomes.co.uk.
We would be pleased to provide you with a free, no obligation valuation for your home. Please contact Vicinity Homes on 01228 599011 or via email to sales@vicinityhomes.co.uk to arrange an appointment.
Although these particulars are thought to be materially correct their accuracy cannot be guaranteed and they do not form part of any contract.
Property data and search facilities supplied by www.vebra.com