Tyttenhanger House,
Coursers Road,
Colney Heath,
St Albans
AL4 0PG
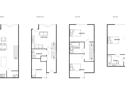
Jake Charles Property are proud to present this stunning four-bedroom mid-terraced home on Narev Drive, EN4. The property offers an impressive 2,185 sq feet of living space spread across four levels: lower ground, ground, first floor and upper. The property is finished to a high standard, featuring luxury fixtures and fittings throughout, ensuring a sophisticated and comfortable living environment. Abundant natural light fills the home, enhancing its spacious feel.
It boasts four spacious double bedrooms with ample storage space, the master bedroom benefiting from a private en suite for added convenience and privacy. A downstairs W.C plus three modern bathrooms throughout the property. The home is located within a small, private gated development, providing a sense of exclusivity and security. Additionally, off-street parking is available, making this property an ideal choice for families or professionals seeking both style and practicality.
The transport links around Narev Drive, EN4, are convenient. You'll have easy access to bus routes that can take you to various parts of the city. Additionally, there are train stations nearby, including New Barnet Overground (0.4 miles), Oakleigh Park Overground (0.6 miles), and Cockfosters (Piccadilly Line, 0.8miles), providing efficient travel options for both work and leisure activities. It's a well-connected area, making it easy to get around and explore different places.
Although these particulars are thought to be materially correct their accuracy cannot be guaranteed and they do not form part of any contract.
Property data and search facilities supplied by www.vebra.com