6 Cornmarket
Louth
Lincolnshire
LN11 9PY
It is a pleasure for TES Property to offer for sale Plot 13, a luxury semi-detached house located on the Monks Dyke Road Development built by the well known C & L Fairburn Properties.
This exclusive development offers a variety of semi-detached, mid terrace and end terrace properties, all tastefully designed throughout.
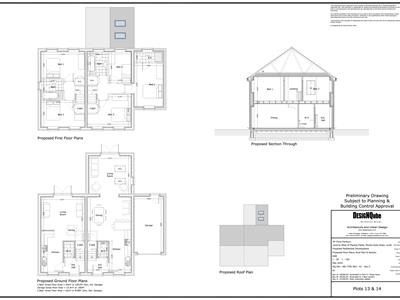
Plot 13 as a total floor area of 678ft² & briefly comprises an entrance hallway, downstairs w.c, an open plan kitchen, diner and living area, three bedrooms with an en-suite and bathroom. Externally the property benefits from front and rear gardens, a driveway and a garage (166ft²)
Viewing is highly recommended!
Located within the historic market town of Louth; fondly known as the 'Capital of the Wolds' and beautifully positioned in an Area of Outstanding Natural Beauty, has a wealth of local services and amenities to offer and there is also easy access to the Coast.
There are many primary and secondary schools including King Edward VI Grammar School. Additionally, there is a hospital, several doctors surgeries, supermarkets and leisure facilities. Louth is particularly well known for its vast array of independent shops, butchers and delicatessens, weekly markets and the New Market Indoor Hall all offering outstanding local produce.
This new development is conveniently located close to local shops, schools and amenities and just a short drive or a walk into the town centre.
This property is in the catchment area for many primary schools, including St Michael's Church of England School, Louth Kidgate Primary Academy, North Cockerington Church of England Primary School and Grimoldby Primary School.
As well as 2 secondary schools, Louth Academy & King Edward VI Grammar School.
This two bedroom semi detached house briefly comprises an entrance hallway with a staircase which leads to the first floor landing, a W.C. ,an open plan dining kitchen and living area with patio doors off into rear garden, two bedrooms and a bathroom.
Externally, the property benefits from a spacious driveway which provides off road parking for multiple vehicles and leads down to the detached garage which has an up and over door, power and lighting.
C & L Fairburn Properties Ltd are a family run development company who have over 14 years experience creating luxury dream homes in Lincolnshire!
C & L Fairburn ensure that each and every property is designed in a way that will meet all of your needs to create your perfect dream home! With spacious floorplans and attention to detail inside and out, these exclusive homes offer an unmatched level of comfort and style.
Whether you are a first time buyer wanting to buy your dream first home, wanting to relocate or a change in size, C & L Fairburn will have your back!
-Kitchen allowance
-Bathroom allowance
-Bathrooms (half tiled)
-Oak internal doors & double glazed to living room
-White spindle stairs
-2 double sockets in all rooms plus TV points
-Boiler in loft with ladder & partly boarded
-Porcelain patio area
-Seeded front & rear gardens
-Outside tap
-Sorrento tumbled block paving driveway
-Front fence Lincolnshire rail & post with laurel hedge
-Sides gated to provide extra security
-Garage with electrics & up and over door
-Alarm system
-Downstairs underfloor zoned heating & first floor radiators in all bedrooms
-Built to the new building regulations
-EPC Band A with newly installed Fast Fibre Network & an aerial Booster
-Roof inset solar panels with 25 year warranty
-Electric car charger point with 25 year warranty
There are also further upgrade packages available allowing you to design your dream home!
2.127m x 4.051m (6'11" x 13'3" )
4.277m x 3.299m (14'0" x 10'9" )
1.500m x 4.050m (4'11" x 13'3" )
4.265m x 2.800m (13'11" x 9'2" )
2.800m x 1.000m (9'2" x 3'3" )
3.277m x 2.600m (10'9" x 8'6" )
2.176m x 3.040m (7'1" x 9'11" )
2.000m x 2.300m (6'6" x 7'6" )
Floor Area - 166ft²
Mains water, drainage, electricity and gas are understood to be connected including underfloor heating to the ground floor. The agents have not tested or inspected the services or service installations and buyers should rely on their own survey.
The property is believed to be freehold and we await solicitors confirmation.
East Lindsey Council Tax Band: TBC
April 2024.
By prior appointment through TES Property office in Louth 01507 601633 admin.louth@tes-property.co.uk
Monday to Friday 9:00am to 5:00pm
Saturday 9:00am to 1:00pm
Although these particulars are thought to be materially correct their accuracy cannot be guaranteed and they do not form part of any contract.
Property data and search facilities supplied by www.vebra.com