C/O 1
Main St
Coatbridge
North Lanarkshire
ML5 3AJ
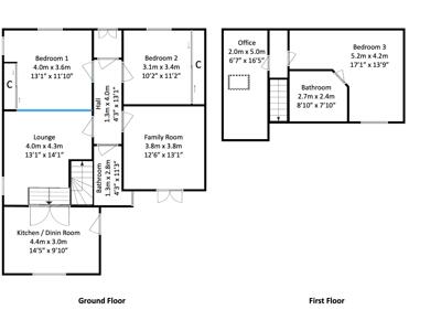
Caroline Morrison of Sweet Home Scotland is proud to bring to the market this fantastic semi detached villa in Church Street in Coatbridge. This charming residence encompasses 105 sq m or thereby of inviting living space, making it an ideal choice for families and individuals in search of a welcoming home. The property features a traditional exterior that harmonizes with the character of the neighborhood, complemented by an interior adorned with exquisite cornicing and modern finishes.
Upon entering, you are greeted by a thoughtfully designed layout that optimizes both space and natural light. The living areas include a spacious living room, perfect for relaxation and entertaining, creating an inviting atmosphere for gatherings with friends and family. The well-appointed mezzanine kitchen offers ample storage and workspace, providing an excellent environment for culinary endeavors.
This home boasts three generously sized double bedrooms, including a master suite with an en-suite shower room, each serving as a tranquil retreat at the end of the day. The additional bedrooms are ideal for family members or guests. Natural light permeates the space, enhancing the warm and welcoming ambiance throughout. The family bathroom, conveniently located on the ground level, features a freestanding bath, adding a touch of luxury.
Additional rooms include a cozy study that can serve as a home office or reading nook.
Outside, the property offers a modest garden area, ideal for enjoying the outdoors. Located on Church Street, residents benefit from proximity to local amenities, schools, and parks, ensuring that everything you need is just a short distance away.
This house on Church Street presents a remarkable opportunity for those looking to establish themselves in a friendly community rich in history. Whether you are a first-time buyer or searching for a new family home, this property deserves your consideration. Seize the chance to make it your own.
Although these particulars are thought to be materially correct their accuracy cannot be guaranteed and they do not form part of any contract.
Property data and search facilities supplied by www.vebra.com