16 Terrace Road
Aberystwyth
Ceredigion
SY23 1NP
An imposing former church with planning permission to extend and for conversion to a dwelling.
An imposing former church with planning permission to extend and for conversion to a dwelling known as
GLEBE HOUSE
TALYBONT
CEREDIGION
SY24 5HF
This is a unique residential development opportunity to acquire this former church premises (formerly St Davids Church) which is offered For Sale with planning permission granted. The property was developed in 1909 with dressed stone from Tonfannau Quarry, near Tywyn. Externally, there are ample grounds and off-road parking.
The village of Talybont is 7 miles North of Aberystwyth. The property is located on the Northen edge of the village off the trunk road and within walking distance of all local amenities which are on offer. These include a primary school, general stores and public house. Both Aberystwyth to the South and Machynlleth 11 miles to the North offer a wide range of amenities to include secondary schools.
Aberystwyth has a good range of both educational, cultural and leisure facilities. And provides for local and national retailers in addition to major employers such as the University, Bronglais Hospital and National Library of Wales.
Freehold
Mains electricity and water. Drainage system laid to boundary and approved by building control but not connected to the mains supply. Please refer to Ofcom for Internet speed and Mobile Signal by using the following link; www.checker.ofcom.org.uk
Strictly by appointment with the sole selling agents; Aled Ellis & Co, 16 Terrace Rd, Aberystwyth. 01970 626160 or sales@aledellis.com
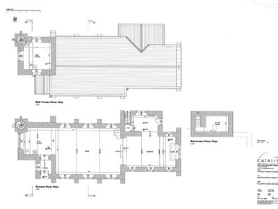
The existing accommodation briefly comprises.
1.55m x 2.44m (5'1 x 8')With side double doors to the former church. Divided into 2 areas.
6.78m x 14.02m (22'3 x 46')
7.44m x 4.47m (24'5 x 14'8)Stained glass feature.
2.29m x 3.76m (7'6 x 12'4)
The property is exempt from an EPC as it was used as a place of worship.
(What3Words ///poster.grades.irony)
From Aberystwyth proceed North out of town on the A487 trunk road through Bow Street to Tal-y-bont. Turn right on the Northern edge of the village (after primary school) and Glebe House is almost immediately on your left.
A copy of the planning permission is attached the particulars for your information.
Title No CYM3911525 is attached.
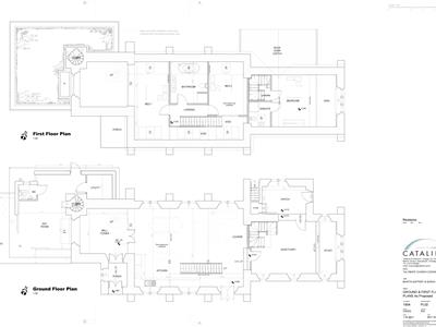
Floor plan (existing) prepared by Catalina Architects together with site, roof and location roof and location plans are attached together for the proposed accommodation.
Although these particulars are thought to be materially correct their accuracy cannot be guaranteed and they do not form part of any contract.
Property data and search facilities supplied by www.vebra.com