Fax: 01538 371314
6 Market Street
Leek
Staffordshire
ST13 6HZ
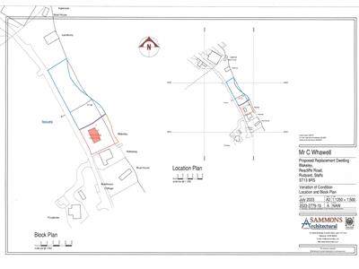
* A fabulous opportunity to purchase a building plot consisting of land of approximately 0.36 of an acre, which is nestled on the lake side of Rudyard Lake, with full permission for development of a detached dwelling, application number (SMD/2024/0023).
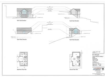
* A further 2.38 acres or thereabouts of woodland is located adjacent to the building plot and is also being offered with the sale. The approval is for a two level detached dwelling, with the ground floor consisting of a Living Room, Two Bedrooms, one with En-Suite, Study, Bathroom and Utility. To the first floor is an open plan Kitchen/Dining Area, with balcony, providing spectacular views of the lake.
* The planning approval incorporates the use of the dwelling as a permanent residence, so is ideal for residential or holiday accommodation.
* Rudyard is a lakeside village in Staffordshire, to the west of the popular market town of Leek. The village is situated some 10 miles South of Macclesfield which has a busy train station offering commuting into Manchester and London. The property is located near the Cheshire border and ideally placed for an easy commute to Leek, Congleton, Macclesfield or Buxton. Leek is a thriving historic market town of Leek which benefits from both independent local traders and supermarkets including Morrisons and Sainsbury's. Rudyard is also well placed for good local schools and, in the private sector, for Kings School and Beech Hall School, Macclesfield.
SERVICES:
It is understood that the property currently has a septic tank, and other main services are located within close proximity, but potential buyers are recommended to make their own enquiries regarding the connection to the site.
TENURE:
Freehold
METHOD OF SALE:
Private Treaty.
VIEWING:
Strictly by appointment with the office. Viewers must exercise caution when visiting the site.
WHAT3WORDS: PRINCELY/CLOUDS/TILTS
It is understood that the property currently has a septic tank, and other main services are located within close proximity, but potential buyers are recommended to make their own enquiries regarding the connection to the site.
Freehold
The property is offered for sale by private treaty.
Strictly by appointment with the office. Viewers must exercise caution when visiting the site.
WHAT3WORDS: PRINCELY/CLOUDS/TILTS
Although these particulars are thought to be materially correct their accuracy cannot be guaranteed and they do not form part of any contract.
Property data and search facilities supplied by www.vebra.com