9 Waterloo Street
Clifton
Bristol
Avon
BS8 4BT
Hollis Morgan – FEBRUARY LIVE ONLINE AUCTION – A Freehold DEVELOPMENT SITE ( 0.59 acres ) with PLANNING GRANTED for a scheme of 6 x HOUSES | GDV of circa £3m.
ADDRESS | Development Site at Gypsy Lane Frome, Somerset, BA11 2NA
https://what3words.com/guess.weeks.supporter
Lot Number TBC
*** PLEASE NOTE NEW AUCTION START TIME - NOW 12:00 Noon***
The Live Online Auction is on Wednesday 11th February 2026 @ 12:00 Noon
Registration Deadline is on Friday 6th February 2026 @ 16:00
The Auction will be streamed LIVE ONLINE via the Hollis Morgan website & you can choose to bid by telephone, proxy or via your computer.
Registration is a simple online process – please visit the Hollis Morgan auction website and click “REGISTER TO BID”
A 0.59 acre Freehold parcel of development land with attractive countryside views, located on the northern edge of the sought after town of Frome in Somerset.
Sold with Vacant Possession.
The existing buildings need demolishing as part of the development.
NB: a quote for the demolition has been provided and is within the Legal Pack.
Tenure - Freehold
DEVELOPMENT SITE | PLANNING GRANTED | MATERIAL START
The 0.59 acre land is sold with the benefit of a live / extant planning permission, granted in 2022 ( 2021/0652/FUL ) for the demolition of the existing bungalow and industrial units, and the erection of 6 dwellings and a commercial Class E(g) office block.
The dwellings are made up for 3 x detached 4 bedroom homes, and 3 x terraced homes, all with separate studies. All houses will have the benefit of garages and parking spaces.
The residential GDV is circa £3,000,000+++
In May 2025 a Certificate of Lawful Development was granted ( 2025/0752/CLE ) following a material start on site, meaning the planning consent has been commenced and will continue to be live / extant for a new developer to continue with.
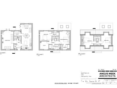
PLOT 1 | DETACHED | 1775 sqft / 165 sqm
Ground Floor - Entrance Hall | Open Plan Kitchen / Diner / Sitting Room | Living Room | | Utility Room | Cloakroom
First Floor - Master Bedroom | Ensuite | Bedroom 2 | Ensuite | Study | Family Bathroom
Second Floor - Bedroom 3 | Bedroom 4
Outside - Double Garage & Double Driveway | Garden
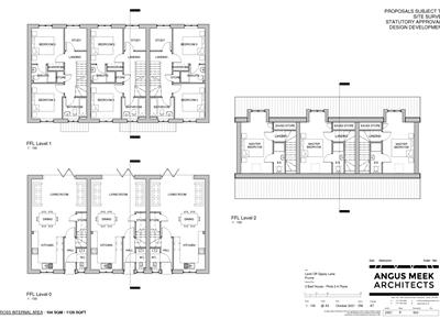
PLOT 2 | END TERRACE | 1120 sqft / 104 sqm
Ground Floor - Entrance Hall | Open Plan Kitchen / Diner / Living Room | Cloakroom
First Floor - Bedroom 2 | Ensuite | Bedroom 3 | Study | Bathroom
Second Floor - Master Bedroom | Ensuite
Outside - Single Garage & Parking | Garden
PLOT 3 | MID TERRACE | 1120 sqft / 104 sqm
Ground Floor - Entrance Hall | Open Plan Kitchen / Diner / Living Room | Cloakroom
First Floor - Bedroom 2 | Ensuite | Bedroom 3 | Study | Bathroom
Second Floor - Master Bedroom | Ensuite
Outside - Single Garage & Parking | Garden
PLOT 4 | END TERRACE | 1120 sqft / 104 sqm
Ground Floor - Entrance Hall | Open Plan Kitchen / Diner / Living Room | Cloakroom
First Floor - Bedroom 2 | Ensuite | Bedroom 3 | Study | Bathroom
Second Floor - Master Bedroom | Ensuite
Outside - Single Garage & Parking | Garden
PLOT 5 | DETACHED | 1377 sqft / 128 sqm
Ground Floor - Entrance Hall | Open Plan Kitchen / Diner | Living Room | Cloakroom
First Floor - Master Bedroom | Ensuite | Bedroom 2 | Study | Bathroom
Second Floor - Bedroom 3 | Bedroom 4 | Bathroom
Outside - Single Garage & Parking | Garden
PLOT 6 | DETACHED | 1377 sqft / 128 sqm
Ground Floor - Entrance Hall | Open Plan Kitchen / Diner | Living Room | Cloakroom
First Floor - Master Bedroom | Ensuite | Bedroom 2 | Study | Bathroom
Second Floor - Bedroom 3 | Bedroom 4 | Bathroom
Outside - Single Garage & Parking | Garden
PLOT 1 | DETACHED | DOUBLE GARAGE | 1775 sqft / 165 sqm | Estimated Value = £695,000
PLOT 2 | END TERRACE | SINGLE GARAGE | 1120 sqft / 104 sqm | Estimated Value = £405,000
PLOT 3 | MID TERRACE | SINGLE GARAGE | 1120 sqft / 104 sqm | Estimated Value = £405,000
PLOT 4 | END TERRACE | SINGLE GARAGE | 1120 sqft / 104 sqm | Estimated Value = £405,000
PLOT 5 | DETACHED | SINGLE GARAGE | 1377 sqft / 128 sqm | Estimated Value = £545,000
PLOT 6 | DETACHED | SINGLE GARAGE | 1377 sqft / 128 sqm | Estimated Value = £545,000
PROPOSED COMMERCIAL BUILDING | CLASS E(g) OFFICE | 2150 sqft / 200 sqm
PARKING | 9 x RESIDENTIAL PARKING SPACES | 5 x COMMERCIAL PARKING SPACES
Proposal: Application for a existing lawful development certificate for the commencement of building works
Reference: 2025/0752/CLE
Planning Authority: Somerset (Area East)
Proposal:Application for a existing lawful development certificate for the commencement of building works
Status: Decided
Decision: Development is Lawful
Decision Issued Date: Thu 29 May 2025
Proposal: Demolition of existing bungalow and industrial units, and erection of 6no. two-storey dwellings and two-storey Class E(g) office block with associated parking and external works (resubmission of 2018/3111/FUL)
Application Type: Full Application
Reference: 2021/0652/FUL (Somerset Area East)
Status: Decided
Decision: Approval
Decision Issued Date: Tue 19 Apr 2022
Other related applications:
Discharge of Conditions: 2025/0444/APP (Somerset Area East) | Approved | Wed 09 Apr 2025
Discharge of Conditions: 2025/0197/APP (Somerset Area East) | Approved | Fri 07 Feb 2025
Discharge of Conditions: 2025/0128/APP (Somerset Area East) | Part Approved | Tue 25 Feb 2025 (Condition 6 was subsequently discharged in Application Approved 09 Apr 2025)
Full details of the proposed scheme and drawings can be downloaded with the online legal pack.
The development site is located on the northern edge of the town of Frome, adjacent to the local Rugby Football Club. The popular town of Frome is is situated in north east Somerset, near to the historic city of Bath. Frome’s popularity has surged in recent years; the town is routinely named one of the best places to live in the UK, thanks to its thriving cultural scene, historic architecture, and beautiful surrounding countryside. The area is renowned for excellent schooling options, which include Frome Media Arts College, All Hallows, Downside, Millfield Senior and Prep, Wells Cathedral School, Sunnyhill and King’s School, Bruton.
A mainline railway service runs direct services from Frome to London Paddington, with a journey time of around 86 minutes, while more regular services from nearby Westbury reach London Paddington in 77 minutes. Access to the national motorway network is via the A303 (M3) and Bristol Airport is less than 30 miles away.
Laura Kellaway
Weisberg Legal
01225 422466
Laura@weisberglegal.co.uk
https://weisberglegal.co.uk/
EXTENDED COMPLETION
Completion is set for 8 weeks or earlier subject to mutual consent.
We have been informed by our client’s solicitors that the legal pack for this lot is now complete.
Should any last minute addendums occur you will be automatically notified by email.
If the vendors have indicated they are willing to consider pre-auction offers, now is the time to submit your offer by completing the pre-auction offer form.
VIEWINGS
Please submit a viewing request online and we will contact you to organise an appointment.
We will send you an email and text to confirm the appointment time and the full property address.
Viewings are supervised by a member of the Hollis Morgan Auction team who will meet you at the property.
MATERIAL INFORMATION
Information including utilities, Electricity supply, Water supply, Sewerage, Heating, Broadband, Mobile signal / coverage, Parking, Building safety, Restrictions and rights, Rights and easements, Flood risk, Erosion risk, Coastal erosion risk, Planning permission for proposal for development, Property accessibility / adaptations, Coalfield or mining area all of which will be supplied within the legal pack that can be accessed for free via the Hollis Morgan website or via your EIG account.
ONLINE LEGAL PACKS
Digital Copies of the Online legal pack can be downloaded Free of Charge.
Please visit the Hollis Morgan Website and select the chosen lot from our Current Auction List.
Press the GREEN button to "Download Legal Packs" For the first visit you will be required to register simply with your email and a password.
Having set up your account you can download legal packs or if they are not yet available, they will automatically be sent to you when we receive them.
You will be automatically updated by email if any new information is added.
There will be a note added to the list to confirm AUCTION PACK NOW COMPLETE when no further information is due to be added.
*** STAY UPDATED *** By registering for the legal pack we can ensure you are kept updated on any changes to this Lot in the build up to the sale.
BUYER’S PREMIUM
Please be aware all purchasers are subject to a £1,500 + VAT (£1,800 inc VAT) buyer's premium which is ALWAYS payable upon exchange of contracts whether the sale is concluded before, during or after the auction date.
GUIDE PRICE
An indication of the seller's current minimum acceptable price at auction. The guide price or range of guide prices is given to assist consumers in deciding whether to pursue a purchase. It is usual, but not always the case, that a provisional reserve range is agreed between the seller and the auctioneer at the start of marketing. As the reserve is not fixed at this stage and can be adjusted by the seller at any time up to the day of the auction in the light of interest shown during the marketing period, a guide price is issued. This guide price can be shown in the form of a minimum and maximum price range within which an acceptable sale price (reserve) would fall, or as a single price figure within 10% of which the minimum acceptable price (reserve) would fall. A guide price is different to a reserve price (see separate definition). Both the guide price and the reserve price can be subject to change up to and including the day of the auction.
RESERVE PRICE
The seller's minimum acceptable price at auction and the figure below which the auctioneer cannot sell. The reserve price is not disclosed and remains confidential between the seller and the auctioneer. Both the guide price and the reserve price can be subject to change up to and including the day of the auction.
PRE AUCTION OFFERS
Some vendors are willing to consider offers prior to the auction.
Pre auction offers can ONLY be submitted by completing the online PRE AUCTION OFFER FORM
The form can be found on the Hollis Morgan website on the individual auction property listing.
Please note offers will not be considered until you have inspected the COMPLETE LEGAL PACK once it has been released.
There will be a note added to the list to confirm AUCTION PACK NOW COMPLETE when our client’s solicitor informs us no further information is due to be added.
In the event of an offer being accepted the property will only be removed from the online auction and viewings stopped once contracts have successfully EXCHANGED subject to the standard auction terms and payment of the buyer’s premium (£1,800 Inclusive of VAT) to Hollis Morgan.
Contracts can be exchanged via the solicitors or at the Hollis Morgan offices by appointment only.
REGISTRATION PROCESS
The registration process is extremely simple – visit the Hollis Morgan auction website and click on the “Register to Bid” button.
The “Register to Bid” button can be found on the auction home page or on the individual lot listings.
Please note this function is not available on Rightmove or Zoopla.
Stage 1 – Complete the Online Bidding Form
Stage 2 – Upload your certified ID
Stage 3 – Invitation to bid
Stage 4 – Pay your security deposit (£6,800)
You are now ready to bid – Good luck!
If your bid is successful, the balance of the deposit monies must be transferred to our client account within 24 hours of the auction sale.
If you are unsuccessful at the auction your holding deposit will be returned within 48 hours.
SURVEYS AND VALUATIONS
If you would like to arrange a survey or mortgage valuation of this Lot BEFORE the auction, please instruct your appointed surveyor to contact Hollis Morgan and we will arrange access for them to inspect the property. Please note that buyers CANNOT attend the surveys and the surveyors are responsible for collecting and returning keys to the Hollis Morgan offices in Clifton.
AUCTION FINANCE & BRIDGING LOANS
Some properties may require specialist auction finance- please contact Hollis Morgan for access to expert advice and whole of market rates from our independent brokers.
Hollis Morgan may receive introductory fees for this service from the broker.
AUCTION BUYER’S GUIDE VIDEO
We have short video guides for both buying and selling by Public Auction on the Hollis Morgan Website. If you have any further questions regarding the process, please don’t hesitate to contact Auction HQ.
2025 CHARITY OF THE YEAR
Hollis Morgan is supporting Uncle Pauls Chilli Charity empowering socially disadvantaged people with barriers to learning &/or disabilities based in Butcombe, North Somerset, our land overlooks the Mendip Hills and Blagdon lake. There are three main areas of focus at Uncle Paul’s Chilli Charity Education, Wellbeing and Social Prescribing – visit www.chillicharity.org.uk/ for more details or the Hollis Morgan Charity Page of our website.
AUCTION PROPERTY DETAILS DISCLAIMER
Hollis Morgan endeavour to make our sales details clear, accurate and reliable in line with the Consumer Protection from Unfair Trading Regulations 2008 but they should not be relied on as statements or representations of fact, and they do not constitute any part of an offer or contract. All Hollis Morgan references to planning, tenants, boundaries, potential development, tenure etc is to be superseded by the information contained in the legal pack. It should not be assumed that this property has all the necessary Planning, Building Regulation, or other consents. Any services, appliances and heating system(s) listed have not been checked or tested. Please note that in some instances the photographs may have been taken using a wide-angle lens. The seller does not make any representation or give any warranty in relation to the property, and we have no authority to do so on behalf of the seller.
Although these particulars are thought to be materially correct their accuracy cannot be guaranteed and they do not form part of any contract.
Property data and search facilities supplied by www.vebra.com