61 High Street
Colliers Wood
London
SW19 2JF
For Sale / To Let - Calling Investors - Occupiers - Developers
Freehold Industrial unit - Suitable for alternative uses - Vacant possession on completion
A freehold commercial property suitable for a range of alternative uses including re development subject to the relevant consents.
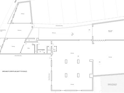
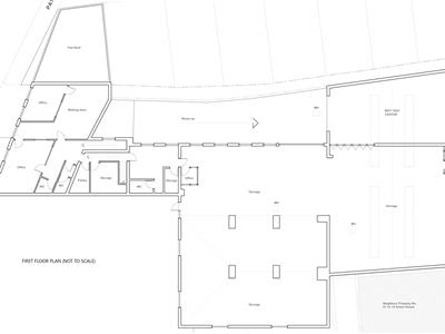
The property is currently used as car repair garage and comprises workshop space with MOT and lift area, offices and store rooms
Approximate GIA - 660 sqm (7,101 sq ft)
Plot size: 0.2
The property is situated North West of Central Croydon and offers excellent transport links
Rail
- West Croydon station: 0.5 miles away offering London Overground, Southern, and Thameslink services
- East Croydon station: 1 mile away with Fast services to central London (15-20 minutes to London Bridge/Victoria) and direct trains to Gatwick Airport and Brighton
Tram
- West Croydon tram stop: 0.5 miles away connecting Wimbledon, Beckenham, and New Addington
Road
- Near A23 (to central London) and A232
- Approximately 15 miles from M25
Possible uses STP - Education, religious, manufacturing, distribution and more
In September 2024 an Outline planning application for 20 flats was refused by Croydon - Ref: 24/00279/OUT
We feel with more attention to detail and consideration to planning policies that a comprehensive resi or mixed use scheme would be allowed
Guide price £1,000,000 Freehold
By appointment only
Contact sole agents CSJ 020 8296 1270
Although these particulars are thought to be materially correct their accuracy cannot be guaranteed and they do not form part of any contract.
Property data and search facilities supplied by www.vebra.com