15 Melbourne Court,
Millennium Way,
Pride Park
Derby
DE24 8LZ
A most impressive and very generous, three storey, four bedroom, late Victorian, semi-detached residence occupying a fabulous elevated position on popular Kedleston Road.
The property retains an abundance of original character and is a true feature residence with mostly sash windows, Minton floor, coved cornice, picture rails, deep skirting boards and archway. The property has gas central heating and accommodation comprising entrance hall with Minton floor and staircase down to useful, spacious cellar, two generous reception rooms and impressive breakfast kitchen with feature bay window. On the first floor a split-level, semi-galleried landing leads to three bedrooms, laundry room, bathroom and separate WC. The second floor comprises the principle suite comprising landing area, spacious bedroom area, walk-in dressing room and superbly appointed shower room.
The property is set up from Kedleston Road behind a mature fore-garden. To the rear of the property is a delightful rear garden which is extremely well-stocked and established. It features an extensive lawn, cobbled patio/terrace located just off the kitchen, borders containing a varied selection of plants, shrubs, trees, brick walling and a courtyard to the foot of the garden giving access to the cobbled tandem driveway (accessed off Highfield Road). There is also a very useful gardener’s WC which is currently being installed by the vendor.
The property’s position on Kedleston Road offers easy access into Derby City centre , notably the Cathedral Quarter incorporating Irongate and Saddler Gate with some stylish shops, restaurants, cafés, Market Square with The Quad cinema, cathedral and easy access to the bus and train station. Kedleston Road itself offers a café, real ale pub, small shop, barbers, Post Office, chemist, Markeaton primary school and access to Markeaton Park and the A38. Other places of interest include Darley Park which is within easy reach.
8.84 x 2.04 (29'0" x 6'8")A beautiful panelled and stained glass entrance door provides access to attractive entrance hall with original Minton floor, panelled staircase to first floor incorporating door down to useful cellar, fully maintained burglar alarm system, two central heating radiators, feature archway, coved cornice and picture rail.
5.54 x 4.57 (18'2" x 14'11")Featuring a fabulous fireplace with decorative surround, raised hearth and cast iron interior with coal effect living flame fitted gas fire, two central heating radiators, coved cornice, picture rail, centre rose, double glazed sash window to side and double glazed box bay window to front incorporating sash windows.
4.72 x 4.17 (15'5" x 13'8")Having a feature fireplace with coal effect living flame gas fire, central heating radiator, coved cornice, picture rail, ceiling rose, double glazed sash window to side and French doors to garden.
7.38 x 3.10 (24'2" x 10'2")The centrepiece being a quartz topped island/breakfast bar with ceramic sink unit with mixer tap, appliance spaces suitable for a gas range cooker, fridge freezer and dishwasher, integrated storage cupboards, two central heating radiators, double glazed feature box bay window to side, double glazed window overlooking garden and double glazed door giving access to garden.
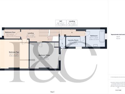
4.37 x 4.06 x 2.01 x 1.26 (14'4" x 13'3" x 6'7" xWith staircase to second floor, feature balustrade and central heating radiator.
4.69 x 4.55 (15'4" x 14'11")Having a central heating radiator, coved cornice, picture rail, ceiling rose and double glazed sash windows to front elevation.
4.67 x 4.13 (15'3" x 13'6")With central heating radiator, coved cornice, picture rail, fitted storage cupboard and sash window to rear.
2.69 x 1.58 (8'9" x 5'2")Having a double glazed sash window to front.
3.07 x 1.73 (10'0" x 5'8")With central heating radiator, appliance spaces suitable for washing machine and tumble dryer and sash window to side.
3.15 x 3.04 (10'4" x 9'11")A stylish period style suite comprising wash handbasin, freestanding bath, two period style towel radiators, sash window to rear and two double glazed roof lights.
1.73 x 0.89 (5'8" x 2'11")Appointed with a low flush WC, wash handbasin, wood panelling, chrome towel radiator and window to side.
2.76 x 2.02 (9'0" x 6'7")A semi-galleried landing with feature balustrade, decorative coving and double glazed window to rear.
6.20 x 4.70 (20'4" x 15'5")A fabulous, generous room with two central heating radiators, feature exposed beams, cast iron fire surround, sash window to front and double glazed Velux window.
4.60 x 1.61 (15'1" x 5'3")Appointed with a low flush WC, wash handbasin, spacious walk-in shower, useful fitted storage, chrome towel radiator and feature exposed beam.
4.64 x 2.54 (15'2" x 8'3")With central heating radiator, feature exposed beam and sash window to rear.
To the rear of the property is a fabulous, private garden which is extremely well-stocked with some impressive plants, mature trees and shrubs. The centrepiece of the garden being the sizeable, well-kept lawn. There is also a cobbled/paved patio terrace just off the kitchen and a further one to the rear. There is a brick built shed with slated roof and cladding and a pedestrian gate leading to the tandem cobbled driveway which provides off-road parking (accessed off Highfield Road).
Although these particulars are thought to be materially correct their accuracy cannot be guaranteed and they do not form part of any contract.
Property data and search facilities supplied by www.vebra.com