74 Totteridge Lane
Totteridge
N20 8QG
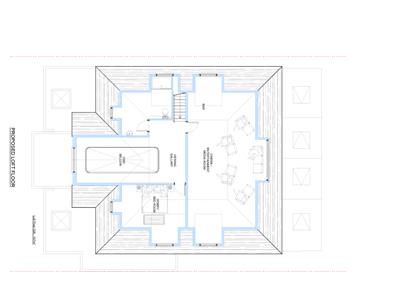
Exceptional Development Opportunity – Barnet Road, Arkley. Real Estates are delighted to offer for sale this superb individual plot located on the highly desirable Barnet Road in Arkley. Planning permission has been granted for a magnificent new home of approximately 6,500 sq. ft., designed to provide luxurious and contemporary living in one of North London’s most prestigious areas.
This rare opportunity allows purchasers to create their dream residence in a peaceful and leafy setting, perfectly positioned within easy reach of Central London. The location benefits from excellent transport links, with the M1 and M25 motorways close by, and nearby stations at Totteridge, Mill Hill, and High Barnet providing convenient access to the City and West End.
There is also potential to extend the existing house which currently comprises of 2,389 sq. ft. (not including garage) STTP.
Arkley is also well served by a number of outstanding schools, including Haberdashers’ Aske’s, Mill Hill, Aldenham, Belmont, and Queen Elizabeth’s, many of which offer dedicated coach services through the area. This is truly a unique opportunity to build a substantial and impressive home in an exclusive North London location. For further information or to arrange a viewing, please contact our Totteridge office
Although these particulars are thought to be materially correct their accuracy cannot be guaranteed and they do not form part of any contract.
Property data and search facilities supplied by www.vebra.com