61 High Street
Colliers Wood
London
SW19 2JF
Brand new community space To Let - We are inviting early expressions of interest - Please review all contents in the brochure prior to contacting the agents.
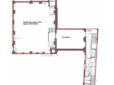
As part of the re-development of the existing grade ll listed building the former Gymnasium is to be adapted to create a fully independent commercial unit with its own separate access of Ascot Road.
The wider development is to create 62 new apartments.
Presenting a rare chance to secure a substantial commercial unit within one of Tooting’s most iconic buildings—the
former Police Station.
This striking unit offers approximately 210 sq m (2,260 sq ft) of versatile space, available in a desirable shell and core finish, ready for your bespoke fit-out in Q4 2026. This fit will require its own planning and listed building permissions.
Be advised there will be no access to the unit from the front of the property on Mitcham Road, the sole entrance for this unit will be found at the rear of the building on Ascot Road where a new stepped and step free entrance will be created.
The space is subject to a set of restrictions under the approved planning permission and accompanying s106 agreement. As such the marketing of the space must take place in accordance with a set process.
Initially for a period of 6 months the space may only be marketed to registered charities or small businesses providing community benefit, in both cases based or operating within the Borough of Merton, and thereafter only to such charities or businesses based in or operating within neighbouring boroughs for a further period of 6 months.
Be advised that initially no viewings will take place with all interested parties who want to be considered as part of this process required to complete the questionnaire which is available on the following link (HERE) or refer to page where link is (Link on page 4).
The initial marketing period is for 6 months and only for qualifying Merton based charities or small businesses with demonstratable community benefit
At the end of this initial 6 months period the owner will review all the expressions of interest and seek to agree terms with any successful qualifying applicants. In the event that no terms have been agreed there will be a second period of 6 months marketing for charities or small businesses with demonstratable community benefit based in adjoining boroughs.
During both initial marketing periods non-qualifying parties can register their interest but note and accept that until the
fixed marketing period has been completed no proposals from non-qualifying parties will be considered
The property is located on Mitcham Road, to the south west of Tooting Broadway town centre,
Tooting Broadway Underground Station (Northern Line) is approximately a 10-minute walk from the property, offering swift access to Central London, including direct routes to major destinations such as Bank, Leicester Square, and Oxford Circus in under 30 minutes
Tooting Thameslink Rail Station is just a 3-minute walk away, providing convenient mainline services to destinations including Wimbledon, Streatham, Elephant & Castle, City Thameslink, and London St Pancras
The property is connected to mains services for electricity, water and drainage. There is no gas at the property.
To be assessed by the local authority
Available on a new lease to be ready for tenants fit out Q4 2026 with terms to be agreed by negotiation
Guide rent £60,000 pa plus service charge
Charities and qualifying small businesses with a community benefit will be able to apply for subsided rent of £8,400 pa plus service charge
The property is elected for vat
If you are interested in this property the questionnaire (link found on the brochure or available on request) must be completed
Due to ongoing construction works and required process there will be no viewings at the current time
Contact sole agents Christopher St James 020 8296 1270
Although these particulars are thought to be materially correct their accuracy cannot be guaranteed and they do not form part of any contract.
Property data and search facilities supplied by www.vebra.com