3 Wrightington Street
Wigan
WN1 2AZ
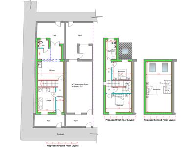
Located on Warrington Road in the charming area of Ince, Wigan, this property presents a unique opportunity for those looking to invest in a residential plot of land. Spanning approximately 970 square feet, this site comes with full planning permission, allowing for the development of a house tailored to your specifications.
The location is particularly appealing, situated in close proximity to Springview Village, which offers a delightful community atmosphere. Residents will benefit from the convenience of nearby local amenities, ensuring that everyday needs are easily met. The surrounding area is predominantly residential, providing a sense of neighbourhood and security.
This plot is ideal for individuals or families seeking to create their dream home in a well-connected and vibrant part of Wigan. With the potential for a bespoke build, this property offers a blank canvas for your vision. Whether you are looking to settle down or invest, this opportunity is not to be missed.
Although these particulars are thought to be materially correct their accuracy cannot be guaranteed and they do not form part of any contract.
Property data and search facilities supplied by www.vebra.com