Suite 414, Jansel House
648 Hitchin Road
Luton
Bedfordshire
LU2 7XH
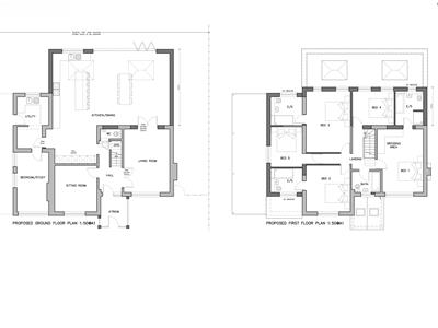
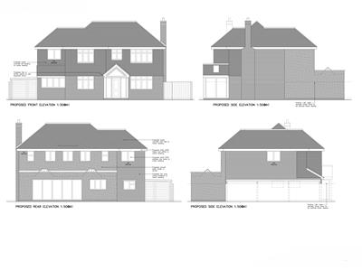
Nestled along the highly sought-after Old Bedford Road, this exceptional four bedroom detached residence offers an outstanding blend of elegance, space and potential. A rare opportunity to secure a home in one of Luton’s most prestigious locations with full planning granted for a double storey side and rear extension (Planning App No. 22/01586/FULHH).
Set behind automated gates, the property welcomes you with a beautifully maintained front garden and a large driveway providing ample parking for several vehicles. Inside, the generous entrance hall leads to a bright dual-aspect living room featuring a grand fireplace, a separate second reception room and a modern fitted kitchen opening into a stunning new extension. This impressive addition provides a spacious breakfast area, utility room and a versatile fourth bedroom, perfect for guests or multi-generational living.
Upstairs, the home continues to impress with two well proportioned bedrooms featuring built-in storage, a stylish family bathroom and a luxurious master bedroom offering an abundance of natural light.
Outside, the expansive rear garden is a true highlight, fully enclosed, beautifully kept and bathed in sunlight throughout the day. The generous plot offers enormous potential for further development, with planning permission already granted for a large double storey wrap around extension, allowing you to truly make this home your own.
Perfectly positioned close to excellent local schools including Barnfield College and Luton Sixth Form, and with easy access to the town centre, train station, M1, and A6, this home combines convenience, comfort, and prestige in equal measure. Surrounded by other executive homes, this is a property that must be seen to be fully appreciated.
An open house is scheduled for the 25.10.25 contact Nova Estate Agents today to book your private tour timeslot.
Although these particulars are thought to be materially correct their accuracy cannot be guaranteed and they do not form part of any contract.
Property data and search facilities supplied by www.vebra.com