62 Elliott Street
Tyldesley
Greater Manchester
M29 8DS
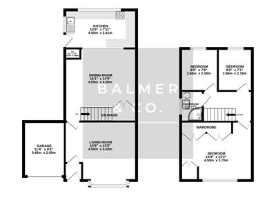
BALMER & CO in ATHERTON are delighted to offer FOR SALE this three bedroom semi detached property located on Wardour Street, one of Atherton's most sought after areas overlooking playing fields. Although it does require some refurbishment it is a good size with an extension to the ground floor and is conveniently placed for easy access to the town centre offering a range of amenities including shops, schools, bars & restaurants as well as transport links. The ground floor comprising in brief; entrance vestibule, living room with gas fireplace, second reception room with gas fireplace and wc, opening out into an extended fitted kitchen. To the first floor are three bedrooms and a three piece shower room. Externally, there is off road parking to the front of the property with a garage and a low maintenance garden to the rear. Early viewings highly recommended, all enquiries welcome.
Although these particulars are thought to be materially correct their accuracy cannot be guaranteed and they do not form part of any contract.
Property data and search facilities supplied by www.vebra.com