Email: development@cheffins.co.uk
1-2 Clifton House, Clifton Road
Cambridge
Cambridgeshire
CB1 7EA
Development site with Prior Approval (Class Q) for the change of use of 2no. agricultural buildings to 5no. residential dwellings (Class C3) and associated operational development. The extant planning permission also presents an opportunity for redevelopment to utilise the wider area subject to the necessary planning permission/s.
Cornish Hall End is a picturesque rural village in the Braintree district of Essex, lying on the B1057 road about three miles north of Finchingfield and approximately 11 miles from Saffron Walden. The community is served by a refurbished village hall housed in a converted Victorian school as well as a village pub (the Horse & Groom). The neighboring village of Finchingfield offers additional facilities such as shops, a post office, a doctor’s surgery, tea rooms, and three pubs.
For the commuter the M11 is within easy reach providing an easy route to Cambridge and London. A mainline station at Audley end (10 miles) provides a direct link to London Liverpool Street in around 1 hour and Cambridge in around 15 minutes.
The plot is approximately 0.8acres.
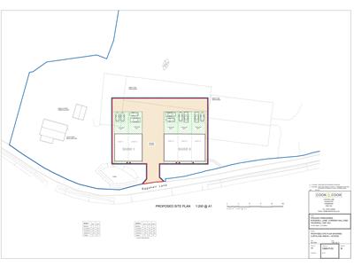
The site benefits from Prior Approval under Class Q for the conversion of 2no. agricultural buildings to 5no. dwellings, associated gardens and car parking.
Prior Approval was granted by Braintree District Council under reference 25/01572/COUPA on 27th August 2025. This application permits 6,750sqft of new residential floorspace across 5 units.
The site also presents an exciting opportunity to submit a new application to demolish the existing buildings and construct new dwellings (up to 5), subject to the necessary planning permission/s.
Technical work completed to date:
- Phase I Geo-Environmental Desk Study, which recommends that a Phase II site investigation is undertaken.
- Preliminary Ecological Appraisal, which concludes that no protected species surveys are required.
- Flood Map for Planning, which confirms the site is in Flood Zone 1, an area with a low probability of flooding.
- Structural Inspection, confirming both buildings are considered suitable for conversion under Class Q permitted development.
- Transport Note, confirming the access is safe and suitable for residential development.
The current planning outline is illustrated in blue within the drone imagery. The extent of the plot to be sold is noted in red.
There is a significant opportunity for value enhancement through replanning the scheme through a new application.
Cheffins planning department would expect to be retained as planning consultant for the development of the site. Please contact Edward Clarke to discuss any planning queries.
Please contact Cheffins for advice on sale prices for new homes in the area.
The site is offered for sale by Private Treaty. Unconditional and subject to planning offers will be considered.
There is further land available to the side (including an existing dwelling) and rear by separate negotiation.
Although these particulars are thought to be materially correct their accuracy cannot be guaranteed and they do not form part of any contract.
Property data and search facilities supplied by www.vebra.com