173 High Street
Berkhamsted
Hertfordshire
HP4 3HB
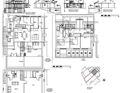
PLOT POTENTIAL AND POSITION. A rare opportunity to develop this hidden gem alongside the canal on the borders of Berkhamsted. Boasting wonderful views with amazing potential to rebuild or extend to create your dream home with full planning permission already granted for a stunning home of approximately 2600 sq ft sitting on a 1/4 acre plot.
This semi-detached Bungalow situated along a private road and tucked behind the canal. This 985 sq. ft property provides 2 bedrooms and a large loft room which could be used for a variety of purposes. There is a garage linked to the property and parking for one car on the drive. Sitting on a generous plot offering huge potential and overlooking the canal. Due to the properties excellent condition this could be a great lock up and leave or you could implement the planning and create a large and unique family home.
Berkhamsted provides a wide range of shopping opportunities, including independent boutiques and eateries with major stores such as Waitrose and Boots on the High Street too. The larger towns of Hemel Hempstead and Watford offer wider facilities, with Milton Keynes and London both easily accessible via the M1. There are a good range of leisure facilities in the area including walking and riding just minutes away in the surrounding countryside and on the National Trust's 5,000 acre Ashridge Estate (around 3 miles away), while nearby golf courses include Ashridge, Berkhamsted and The Grove.
Berkhamsted is considered a highly desirable commuter town, with excellent transport links by road and rail. The mainline station provides a regular and direct link to London Euston in a little over 30 minutes. Major road connections nearby include the M25 (J20) and the M1 (J8), both of which are around 8 miles away. The A41 dual carriageway runs to the south of the town, providing an excellent connection to the larger towns of Hemel Hempstead, Aylesbury and Watford.
Berkhamsted overground (1.2 miles)
Tring overground (2.6 miles)
Chesham underground (4.5 miles)
There are a number of excellent schools in the area including Berkhamsted School for Boys and Girls, Merchant Taylors for Boys, Heatherton House, Royal Masonic School and Wycombe Abbey School for Girls, Chesham Grammar and Aylesbury Grammar. There is also the world famous Ashridge Management College.
The local primary schools are all highly rated by Ofsted and offer pre-school facilities.
Northchurch St Mary's School (0.1 miles)
Westfield Primary School (0.3 miles)
Bridgewater Primary School (0.6 miles)
Ashlyns School (1.5 miles)
Tring School (3.5 miles)
John F Kennedy Catholic School (3.9 miles)
Egerton-Rothesay School (0.5 miles)
Berkhamsted School (1.4 miles)
Tring Park School for Performing Arts (3.3 miles)
Thank you for showing an interest in a property marketed by Sterling Estate Agents.
Please be aware, should you wish to make an offer for this property, we will require the following information before we enter negotiations:
1. Copy of your mortgage agreement in principal.
2. Evidence of deposit funds, if equity from property sale confirmation of your current mortgage balance i.e. Your most recent mortgage statement, if monies in bank accounts the most up to date balances..
3. Passport photo ID for ALL connected purchasers and a utility bill. We are duty bound to complete anti money laundering (AML) checks on all connected purchasers should an offer be successful. The charge for this is £75 plus VAT per person.
Unfortunately we will not be able to progress negotiating any offer unless we have ID and proof of funds.
Although these particulars are thought to be materially correct their accuracy cannot be guaranteed and they do not form part of any contract.
Property data and search facilities supplied by www.vebra.com