54 John William Street
Huddersfield
West Yorkshire
HD1 1ER
TEMPORARILY SUSBENDED FROM AUCTION
**** FOR SALE UNDER COMMON AUCTION CONDITIONS - ONLINE BIDDING OPENING FROM 06.01.2026 AT 12.00 WITH CLOSING BIDS 07.01.2026 AT 12.00 NOON ******
+++ ATTENTION SELF BUILDERS & DEVELOPERS +++ BOASTING A STUNNING POSITION ++++
A FANTASTIC SEMI-DETACHED BARN CONVERSION WITH PANORAMIC VIEWS LOCATED IN A RURAL POSITION YET CONVENIENTLY SITUATED FOR LOCAL AND REGIONAL FINANCIAL CENTERS.
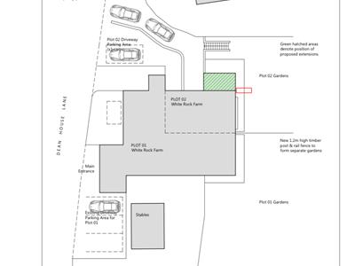
Offered with grant of planning, application 23/00678/FUL, to create a 3/4 bedroom property with substantial living accommodation over three floors. Outside there will be extensive gardens (with the views) and off road parking.
Offering an enormous amount of inherent character to work with including natural stone, original timbers and a significant gross internal floor area.
*** VISIT OUR WEBSITE TO REGISTER, VIEW THE LEGAL PACK AND BID ***
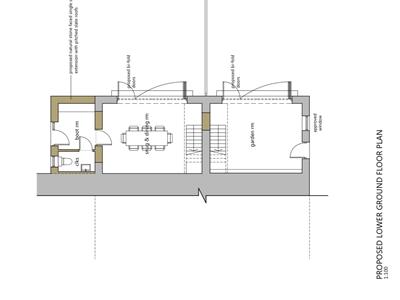
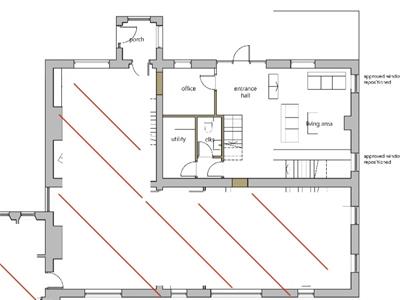
The proposed design allows for the following:
Ground floor - entrance hall, WC, utility, office and living area.
Lower ground floor - dining room (with bi-fold doors to the garden), boot room and WC.
First floor - landing, master bedroom with ensuite, two further bedrooms and house bathroom.
To the outside the design allows for three parking spaces and a garden to the rear.
The property benefits from planning permission under application 23/00678/FUL from Calderdale Metropolitan Borough Council.
The permission allows subdivision of White Rock Farm to form Plot 1 and Plot 2. This transaction is the sale of Plot 2.
The consent is dated 25th April 2024 with development work needing to commence no later than the expiration of three years beginning on the date the permission was granted.
A copy of the consent is available from Boultons.
The property currently forms part of title WYK546307 which is for both Plot 1 and Plot 2 White Rock Farm. This transaction will be a Freehold transfer of part out of the aforementioned title to create a new title. A title plan is currently in production.
The property will need to be accessed for Council Tax upon completion.
Viewings strictly by appointment with Boultons.
The lot is offered in an online auction which is open to bid from the 6th January for 24 hours with closing bids before 12.00 on the 7th Janauary 2026, subject to remaining unsold previously.
Buying at auction is a contractual commitment, you are legally obliged to buy the lot on the terms of the sale memorandum at the price you bid. If you are the successful bidder, you are required to pay the deposit and auction fees immediately. As agent for the seller, we treat any failure to satisfy your obligations as your repudiation of the contract and the seller may then have a claim against you for breach of contract. You must not bid unless you wish to be bound by the common conditions of auction. *Please be aware there may be additional fees payable on top of the final sale price. These include and are not limited to administration charges and buyer's premium fees payable on exchange, and disbursements payable on completion. Please ensure you check the property information page for a list of any relevant additional fees as well as reading the legal pack for any disbursements.*
VISIT OUR WEBSITE TO REGISTER & BID
We draw your attention to the Special Conditions of Sale within the Legal Pack, referring to other charges in addition to the purchase price which may become payable. Such costs may include Search Fees, reimbursement of Sellers costs and Legal Fees, and Transfer Fees amongst others.
You must register online to inspect the documents prior to bidding.
The completion date as per the Common Auction Conditions online is 20 business days from the fall of the electronic hammer.
*GUIDE PRICE: This is an estimate of the likely range of selling price and is set at the commencement of marketing. The guide price may change during the marketing period. RESERVE PRICE: This is agreed with the Auctioneer prior to the auction and will not be disclosed to the public. The reserve price is the lowest figure at which the property is available for sale at the auction. If the lot is not sold at the auction then the property may be available for sale afterwards at a higher or lower figure. See catalogue for full explanation.
No viewing of the building is permitted on safety grounds. External inspections only.
£300 of your holding deposit fee will be used to cover banking costs and does not contribute towards your deposit.
Although these particulars are thought to be materially correct their accuracy cannot be guaranteed and they do not form part of any contract.
Property data and search facilities supplied by www.vebra.com