56 Merrial Street
Newcastle Under Lyme
Staffordshire
Newcastle
ST5 2AJ
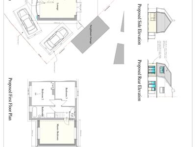
Situated on Stretton Road in Silverdale, this semi-detached house presents an excellent opportunity for first-time buyers, families, or investors alike. The existing layout provides comfortable and versatile living accommodation, while full planning permission has been granted for a substantial two-storey extension plus additional room rear extension along with two parking spaces to the front.
Whether you're a homeowner with a vision, a developer, or an investor, this is a rare chance to secure a property with planning already in place – saving you time and expense, and offering the flexibility to create something truly special!
The property boasts a welcoming porch that leads into a hallway and of course the heart of the house is the well-appointed kitchen, which flows seamlessly into a bright and airy reception room. This inviting space is perfect for both relaxation and entertaining, and it further extends into a sun room that overlooks the garden, allowing for an abundance of natural light to fill the area.
This residence features three generously sized bedrooms, providing ample space for family living or guest accommodation. The convenience of a downstairs shower room is a notable highlight, complemented by an additional toilet located upstairs, ensuring practicality for busy households.
Outside, the property is surrounded by front, side, and rear gardens. The driveway accommodates parking for two vehicles.
With its appealing layout and prime location, this semi-detached house on Stretton Road is a wonderful choice for those seeking a comfortable and versatile living space in Newcastle. Don't miss the chance to make this property your own.
Council Tax Band- A
Tenure- Freehold
Council- Newcastle-under-Lyme Borough
2.258 x 1.259 (7'4" x 4'1" )
3.714 x 3.647 (12'2" x 11'11" )
5.527 x 3.674 (18'1" x 12'0" )
1.913 x 2.805 (6'3" x 9'2" )
1.677 x 1.229 (5'6" x 4'0" )
3.678 x 3.284 (12'0" x 10'9" )
3.508 x 3.628 (11'6" x 11'10" )
3.521 x 1.763 (11'6" x 5'9" )
0.717 x 1.666 (2'4" x 5'5")
Agents are required by law to conduct Anti-Money Laundering checks on all those buying a property. Stephenson Browne charge £49.99 plus VAT for an AML check per purchase transaction . This is a non-refundable fee. The charges cover the cost of obtaining relevant data, any manual checks that are required, and ongoing monitoring. This fee is payable in advance prior to the issuing of a memorandum of sale on the property you are seeking to buy.
Although these particulars are thought to be materially correct their accuracy cannot be guaranteed and they do not form part of any contract.
Property data and search facilities supplied by www.vebra.com