9 Waterloo Street
Clifton
Bristol
Avon
BS8 4BT
Hollis Morgan – FEBRUARY LIVE ONLINE AUCTION – Freehold DEVELOPMENT OPPORTUNITY with PLANNING GRANTED to create an 8 BED | 8 BATH HMO style investment with scope for £70k pa INCOME and potential for EXTRA 3/4 rooms ( stc )
ADDRESS | 131 High Street, Weston-Super-Mare, North Somerset BS23 1HN
Lot Number 30
*** PLEASE NOTE NEW AUCTION START TIME - NOW 12:00 ***
The Live Online Auction is on Wednesday 11th February 2026 @ 12:00 Noon
Registration Deadline is on Friday 6th February 2026 @ 16:00
The Auction will be streamed LIVE ONLINE via the Hollis Morgan website & you can choose to bid by telephone, proxy or via your computer.
Registration is a simple online process – please visit the Hollis Morgan auction website and click “REGISTER TO BID”
A Freehold end of terrace commercial property with accommodation ( 2376 Sq Ft ) arranged over 2 floors with additional side access from Old Post Office Lane.
The property was previously occupied by Subway but is now offered with vacant possession.
Tenure - Freehold
EPC - C
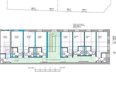
PLANNING GRANTED | HMO | £70K PA
Planning has been granted ( 24/P/1501/FUL ) for change of use and conversion into a purpose built 8 bed | 8 bath HMO style accommodation on the first floor with generous communal areas and additional office on the ground floor.
The vendors have been advised the rooms would achieve a rental income of circa £730 pcm per room once completed generating circa £70,000 per annum income.
ROOF SPACE | EXTRA ROOMS
There is potential to create additional rooms in the large roof void.
Subject to gaining the necessary consents - interested parties to make their own investigations.
What rent can we achieve for you?
Mendip Property Management are confident this property would make a good rental investment if brought to a standard suitable for the professional rental market. Jason Virjee of Mendip Property Management suggests a rent in the region of;
131 High Street - £730 pcm per room (inclusive of bills)
If you would like to discuss more detail on the potential for rental, you can call me on 01275 332779 or email (enquiry@mendipproperty.com) for a no obligation discussion. I am always happy to advise investors on maximising their investment.
Reference24/P/1501/FUL
Application ReceivedTue 23 Jul 2024
Application ValidatedTue 30 Jul 2024
Address131 High Street Weston-super-Mare BS23 1HN
ProposalProposed change of use from a cafe (Class E) with ancillary accommodation at first floor to a large house in multiple occupation (HMO), (Class C4) for up to 8no. people with office and communal areas at ground floor (sui generis).
StatusDecided
DecisionRefuse
Decision Issued DateThu 10 Oct 2024
Appeal StatusAppeal decided
Appeal DecisionAppeal allowed
Full details of the proposed scheme and drawings can be downloaded with the online legal pack.
Weston Super Mare is a popular seaside town located on the Bristol Channel coast of North Somerset situated approximately 18 miles (29 km) south-west of Bristol and has a population of approximately 80,000 people. The town has a long history as a popular holiday destination, with a sandy beach that stretches for over two miles (3.2 km) and a variety of attractions and activities for visitors. The town centre has a mix of old and modern buildings, with several historic landmarks such as the Grand Pier, the Winter Gardens Pavilion, and the Birnbeck Pier. Westons main attraction is its beach, which is backed by a wide promenade and a range of amenities such as cafes, restaurants, and shops. The Grand Pier is a popular destination for families, with a variety of fairground rides, arcade games, and attractions. The town also has several parks and green spaces, including the 12-acre Grove Park, which has a children's play area, a boating lake, and a miniature railway. Other popular parks include Clarence Park and Ashcombe Park, both of which offer picturesque settings for picnics and walks. Weston is well connected with the M5 motorway running nearby and regular train services to Bristol, Bath, and other major cities. The town also has its own railway station, which is located within walking distance of the town center and the beach.
Steffani Asquith
Carbon Law
Steffani.Asquith@carbonlawpartners.com
EXTENDED COMPLETION
Completion is set for 8 weeks or earlier subject to mutual consent.
VIEWINGS
Please submit a viewing request online and we will contact you to organise an appointment.
We will send you an email and text to confirm the appointment time and the full property address.
Viewings are supervised by a member of the Hollis Morgan Auction team who will meet you at the property.
MATERIAL INFORMATION
Information including utilities, Electricity supply, Water supply, Sewerage, Heating, Broadband, Mobile signal / coverage, Parking, Building safety, Restrictions and rights, Rights and easements, Flood risk, Erosion risk, Coastal erosion risk, Planning permission for proposal for development, Property accessibility / adaptations, Coalfield or mining area all of which will be supplied within the legal pack that can be accessed for free via the Hollis Morgan website or via your EIG account.
ONLINE LEGAL PACKS
Digital Copies of the Online legal pack can be downloaded Free of Charge.
Please visit the Hollis Morgan Website and select the chosen lot from our Current Auction List.
Press the GREEN button to "Download Legal Packs" For the first visit you will be required to register simply with your email and a password.
Having set up your account you can download legal packs or if they are not yet available, they will automatically be sent to you when we receive them.
You will be automatically updated by email if any new information is added.
There will be a note added to the list to confirm AUCTION PACK NOW COMPLETE when no further information is due to be added.
*** STAY UPDATED *** By registering for the legal pack we can ensure you are kept updated on any changes to this Lot in the build up to the sale.
BUYER’S PREMIUM
Please be aware all purchasers are subject to a £1,500 + VAT (£1,800 inc VAT) buyer's premium which is ALWAYS payable upon exchange of contracts whether the sale is concluded before, during or after the auction date.
GUIDE PRICE
An indication of the seller's current minimum acceptable price at auction. The guide price or range of guide prices is given to assist consumers in deciding whether to pursue a purchase. It is usual, but not always the case, that a provisional reserve range is agreed between the seller and the auctioneer at the start of marketing. As the reserve is not fixed at this stage and can be adjusted by the seller at any time up to the day of the auction in the light of interest shown during the marketing period, a guide price is issued. This guide price can be shown in the form of a minimum and maximum price range within which an acceptable sale price (reserve) would fall, or as a single price figure within 10% of which the minimum acceptable price (reserve) would fall. A guide price is different to a reserve price (see separate definition). Both the guide price and the reserve price can be subject to change up to and including the day of the auction.
RESERVE PRICE
The seller's minimum acceptable price at auction and the figure below which the auctioneer cannot sell. The reserve price is not disclosed and remains confidential between the seller and the auctioneer. Both the guide price and the reserve price can be subject to change up to and including the day of the auction.
PRE AUCTION OFFERS
Some vendors are willing to consider offers prior to the auction.
Pre auction offers can ONLY be submitted by completing the online PRE AUCTION OFFER FORM
The form can be found on the Hollis Morgan website on the individual auction property listing.
Please note offers will not be considered until you have inspected the COMPLETE LEGAL PACK once it has been released.
There will be a note added to the list to confirm AUCTION PACK NOW COMPLETE when our client’s solicitor informs us no further information is due to be added.
In the event of an offer being accepted the property will only be removed from the online auction and viewings stopped once contracts have successfully EXCHANGED subject to the standard auction terms and payment of the buyer’s premium (£1,800 Inclusive of VAT) to Hollis Morgan.
Contracts can be exchanged via the solicitors or at the Hollis Morgan offices by appointment only.
REGISTRATION PROCESS
The registration process is extremely simple – visit the Hollis Morgan auction website and click on the “Register to Bid” button.
The “Register to Bid” button can be found on the auction home page or on the individual lot listings.
Please note this function is not available on Rightmove or Zoopla.
Stage 1 – Complete the Online Bidding Form
Stage 2 – Upload your certified ID
Stage 3 – Invitation to bid
Stage 4 – Pay your security deposit (£6,800)
You are now ready to bid – Good luck!
If your bid is successful, the balance of the deposit monies must be transferred to our client account within 24 hours of the auction sale.
If you are unsuccessful at the auction your holding deposit will be returned within 48 hours.
SURVEYS AND VALUATIONS
If you would like to arrange a survey or mortgage valuation of this Lot BEFORE the auction, please instruct your appointed surveyor to contact Hollis Morgan and we will arrange access for them to inspect the property. Please note that buyers CANNOT attend the surveys and the surveyors are responsible for collecting and returning keys to the Hollis Morgan offices in Clifton.
AUCTION FINANCE & BRIDGING LOANS
Some properties may require specialist auction finance- please contact Hollis Morgan for access to expert advice and whole of market rates from our independent brokers.
Hollis Morgan may receive introductory fees for this service from the broker.
AUCTION BUYER’S GUIDE VIDEO
We have short video guides for both buying and selling by Public Auction on the Hollis Morgan Website. If you have any further questions regarding the process, please don’t hesitate to contact Auction HQ.
2026 CHARITY OF THE YEAR
Hollis Morgan are proud to be supporting Bristol Schools Rugby Union as our 2026 Charity of the Year. BSRU ( working in association with Bristol Bears ) oversee and support rugby in all schools, State and Independent , in the Greater Bristol area. Bristol Schools provide School Rugby Development opportunities and County level fixtures for secondary boys and girls. Including playing fixtures at U18s against the leading Independent Schools in our region, schools such as Clifton College, BGS, QEH, Collegiate and Millfield. For more information and details of the fixture list please follow them on Instagram.
AUCTION PROPERTY DETAILS DISCLAIMER
Hollis Morgan endeavour to make our sales details clear, accurate and reliable in line with the Consumer Protection from Unfair Trading Regulations 2008 but they should not be relied on as statements or representations of fact, and they do not constitute any part of an offer or contract. All Hollis Morgan references to planning, tenants, boundaries, potential development, tenure etc is to be superseded by the information contained in the legal pack. It should not be assumed that this property has all the necessary Planning, Building Regulation, or other consents. Any services, appliances and heating system(s) listed have not been checked or tested. Please note that in some instances the photographs may have been taken using a wide-angle lens. The seller does not make any representation or give any warranty in relation to the property, and we have no authority to do so on behalf of the seller.
Although these particulars are thought to be materially correct their accuracy cannot be guaranteed and they do not form part of any contract.
Property data and search facilities supplied by www.vebra.com