9 Waterloo Street
Clifton
Bristol
Avon
BS8 4BT
Hollis Morgan – FEBRUARY LIVE ONLINE AUCTION - A prominent FREEHOLD MIXED USE OPPORTUNITY ( 1938 Sq Ft ) scope for additional 1 BED FLAT stc | PARKING to rear | REDUCED - previously £400K
ADDRESS | 361 Two Mile Hill Road, Kingswood, Bristol BS15 1AF
Lot Number TBC
*** PLEASE NOTE NEW AUCTION START TIME - NOW 12:00 ***
The Live Online Auction is on Wednesday 11th February 2026 @ 12:00 Noon
Registration Deadline is on Friday 6th February 2026 @ 16:00
The Auction will be streamed LIVE ONLINE via the Hollis Morgan website & you can choose to bid by telephone, proxy or via your computer.
Registration is a simple online process – please visit the Hollis Morgan auction website and click “REGISTER TO BID”
A Freehold mixed use property occupying a prominent trading position in the heart of Kingswood. The property has accommodation ( 1938 Sq Ft ) arranged over two floors plus a converted attic and is arranged as a self contained retail unit and first floor flat.
The parking space is in the rear shared courtyard - refer to online legal pack.
Sold with vacant possession.
Ground Floor - Self Contained Retail Unit | Trading Area | Ancillary to rear
First Floor - Self contained 2 bedroom flat with Roof Terrace | Converted Attic Space | Parking Space to rear.
Tenure - Freehold
Council Tax - A
EPC - Flat E | Commercial D
MIXED USE OPPORTUNITY
This large 1938 Sq Ft property has a range of potential opportunities including.
ADDITIONAL 1 BED FLAT ON GROUND FLOOR
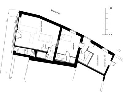
Planning was previously sought to create a self contained one bedroom flat at the rear of the property - please refer to proposed scheme in the images section.
Whilst ultimately planning was refused ( see planning history in schedule ) we understand the concept is not contentious and subject to a new planning application there is genuine scope for a successful consent.
Subject to consents.
EXTRA BEDROOM ON EXISTING FLAT
The existing two bedroom flat has scope to create a 3rd bedroom in the lounge area.
The attic space also has scope for additional accommodation.
All subject to gaining the necessary consents.
Please refer to independent rental appraisal
COMMERCIAL INCOME
The retail area has an excellent trading position - Burston Cook have suggested the potential income would be £12,500 pa
REDUCED PRICE FOR AUCTION
The property was previously listed with respected local agents for £400,000 and is now offered with a reduced guide price for a sale by live online auction
Reference23/00908/CP
Alternative ReferencePP-11985611
Application ReceivedFri 03 Mar 2023
Application ValidatedFri 03 Mar 2023
Address361 Two Mile Hill Road Bristol BS15 1AF
ProposalApplication for a Certificate of Proposed Development - change of use of the rear area of the shop into a 1 bedroom flat.
StatusUnknown
DecisionAppeal against non-determination
Decision Issued DateMon 16 Sep 2024
Appeal StatusAppeal decided
Appeal DecisionAppeal Dismissed
What rent can we achieve for you?
The Bristol Residential Letting Co. are confident this property would make a good rental investment if brought to a standard suitable for the professional rental market. Danny Dean of The Bristol Residential Letting Co suggests a rent in the region of;
361, Two Mile Hill Road, 2 bed flat - £1350pcm - £1400pcm.
If you would like to discuss more detail on the potential for rental, you can call me on 07738766640 or email (danny@bristolreslet.com) for a no obligation discussion. I am always happy to advise investors on maximising their investment.
Two Mile Hill is a popular location in Kingswood just a few miles East of Bristol city centre, providing easy access to the city's shops, restaurants, and cultural attractions. The area has excellent transport links, with regular buses and easy access to the M4 and M5 motorways, making it an ideal location for commuters. The housing stock in Two Mile Hill is diverse, with a range of property types, including Victorian terraces, 1930s semis, and modern apartments, there are several parks and green spaces nearby, including the popular Kingswood Park. The area is served by several primary and secondary schools including the highly regarded Two Mile Hill Primary School. There are also plenty of amenities in the area, including supermarkets, shops, and restaurants.
Alex Castiglione
Barcan Kirby
0117 325 6565
a.castiglione@barcankirby.co.uk
https://barcankirby.co.uk/
EXTENDED COMPLETION
Completion is set for 8 weeks or earlier subject to mutual consent.
We have been informed by our client’s solicitors that the legal pack for this lot is now complete.
Should any last minute addendums occur you will be automatically notified by email.
If the vendors have indicated they are willing to consider pre-auction offers, now is the time to submit your offer by completing the pre-auction offer form.
VIEWINGS
Please submit a viewing request online and we will contact you to organise an appointment.
We will send you an email and text to confirm the appointment time and the full property address.
Viewings are supervised by a member of the Hollis Morgan Auction team who will meet you at the property.
MATERIAL INFORMATION
Information including utilities, Electricity supply, Water supply, Sewerage, Heating, Broadband, Mobile signal / coverage, Parking, Building safety, Restrictions and rights, Rights and easements, Flood risk, Erosion risk, Coastal erosion risk, Planning permission for proposal for development, Property accessibility / adaptations, Coalfield or mining area all of which will be supplied within the legal pack that can be accessed for free via the Hollis Morgan website or via your EIG account.
ONLINE LEGAL PACKS
Digital Copies of the Online legal pack can be downloaded Free of Charge.
Please visit the Hollis Morgan Website and select the chosen lot from our Current Auction List.
Press the GREEN button to "Download Legal Packs" For the first visit you will be required to register simply with your email and a password.
Having set up your account you can download legal packs or if they are not yet available, they will automatically be sent to you when we receive them.
You will be automatically updated by email if any new information is added.
There will be a note added to the list to confirm AUCTION PACK NOW COMPLETE when no further information is due to be added.
*** STAY UPDATED *** By registering for the legal pack we can ensure you are kept updated on any changes to this Lot in the build up to the sale.
BUYER’S PREMIUM
Please be aware all purchasers are subject to a £1,500 + VAT (£1,800 inc VAT) buyer's premium which is ALWAYS payable upon exchange of contracts whether the sale is concluded before, during or after the auction date.
GUIDE PRICE
An indication of the seller's current minimum acceptable price at auction. The guide price or range of guide prices is given to assist consumers in deciding whether to pursue a purchase. It is usual, but not always the case, that a provisional reserve range is agreed between the seller and the auctioneer at the start of marketing. As the reserve is not fixed at this stage and can be adjusted by the seller at any time up to the day of the auction in the light of interest shown during the marketing period, a guide price is issued. This guide price can be shown in the form of a minimum and maximum price range within which an acceptable sale price (reserve) would fall, or as a single price figure within 10% of which the minimum acceptable price (reserve) would fall. A guide price is different to a reserve price (see separate definition). Both the guide price and the reserve price can be subject to change up to and including the day of the auction.
RESERVE PRICE
The seller's minimum acceptable price at auction and the figure below which the auctioneer cannot sell. The reserve price is not disclosed and remains confidential between the seller and the auctioneer. Both the guide price and the reserve price can be subject to change up to and including the day of the auction.
PRE AUCTION OFFERS
Some vendors are willing to consider offers prior to the auction.
Pre auction offers can ONLY be submitted by completing the online PRE AUCTION OFFER FORM
The form can be found on the Hollis Morgan website on the individual auction property listing.
Please note offers will not be considered until you have inspected the COMPLETE LEGAL PACK once it has been released.
There will be a note added to the list to confirm AUCTION PACK NOW COMPLETE when our client’s solicitor informs us no further information is due to be added.
In the event of an offer being accepted the property will only be removed from the online auction and viewings stopped once contracts have successfully EXCHANGED subject to the standard auction terms and payment of the buyer’s premium (£1,800 Inclusive of VAT) to Hollis Morgan.
Contracts can be exchanged via the solicitors or at the Hollis Morgan offices by appointment only.
REGISTRATION PROCESS
The registration process is extremely simple – visit the Hollis Morgan auction website and click on the “Register to Bid” button.
The “Register to Bid” button can be found on the auction home page or on the individual lot listings.
Please note this function is not available on Rightmove or Zoopla.
Stage 1 – Complete the Online Bidding Form
Stage 2 – Upload your certified ID
Stage 3 – Invitation to bid
Stage 4 – Pay your security deposit (£6,800)
You are now ready to bid – Good luck!
If your bid is successful, the balance of the deposit monies must be transferred to our client account within 24 hours of the auction sale.
If you are unsuccessful at the auction your holding deposit will be returned within 48 hours.
SURVEYS AND VALUATIONS
If you would like to arrange a survey or mortgage valuation of this Lot BEFORE the auction, please instruct your appointed surveyor to contact Hollis Morgan and we will arrange access for them to inspect the property. Please note that buyers CANNOT attend the surveys and the surveyors are responsible for collecting and returning keys to the Hollis Morgan offices in Clifton.
AUCTION FINANCE & BRIDGING LOANS
Some properties may require specialist auction finance- please contact Hollis Morgan for access to expert advice and whole of market rates from our independent brokers.
Hollis Morgan may receive introductory fees for this service from the broker.
AUCTION BUYER’S GUIDE VIDEO
We have short video guides for both buying and selling by Public Auction on the Hollis Morgan Website. If you have any further questions regarding the process, please don’t hesitate to contact Auction HQ.
2026 CHARITY OF THE YEAR
Hollis Morgan are proud to be supporting Bristol Schools Rugby Union as our 2026 Charity of the Year. BSRU ( working in association with Bristol Bears ) oversee and support rugby in all schools, State and Independent , in the Greater Bristol area. Bristol Schools provide School Rugby Development opportunities and County level fixtures for secondary boys and girls. Including playing fixtures at U18s against the leading Independent Schools in our region, schools such as Clifton College, BGS, QEH, Collegiate and Millfield. For more information and details of the fixture list please follow them on Instagram.
AUCTION PROPERTY DETAILS DISCLAIMER
Hollis Morgan endeavour to make our sales details clear, accurate and reliable in line with the Consumer Protection from Unfair Trading Regulations 2008 but they should not be relied on as statements or representations of fact, and they do not constitute any part of an offer or contract. All Hollis Morgan references to planning, tenants, boundaries, potential development, tenure etc is to be superseded by the information contained in the legal pack. It should not be assumed that this property has all the necessary Planning, Building Regulation, or other consents. Any services, appliances and heating system(s) listed have not been checked or tested. Please note that in some instances the photographs may have been taken using a wide-angle lens. The seller does not make any representation or give any warranty in relation to the property, and we have no authority to do so on behalf of the seller.
Although these particulars are thought to be materially correct their accuracy cannot be guaranteed and they do not form part of any contract.
Property data and search facilities supplied by www.vebra.com