Fax: 01450 378 525
28 High Street
Hawick
Scottish Borders
TD9 9EH
Prime residential development opportunity with planning permission for seven detached homes located in the former Crumhaugh House Care Home premises.
This exceptional development site of 1.3 acres presents a rare opportunity for developers and investors to acquire a highly attractive parcel of land with full planning permission granted for a bespoke collection of seven detached properties. The scheme has been carefully designed to provide a balanced mix of house types, catering to a wide market and ensuring strong buyer appeal upon completion.
The site itself occupies an elevated position with commanding views across the town and surrounding countryside. (subject to the removal of various trees) The orientation of the plots allows many of the proposed homes to enjoy far reaching outlooks, creating a sense of light, space and exclusivity. This natural advantage will significantly enhance the saleability of the completed properties, setting the development apart from competing schemes.
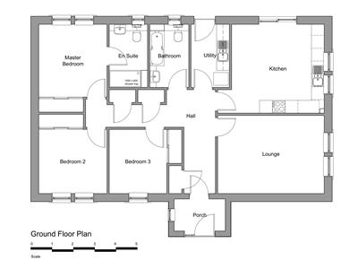
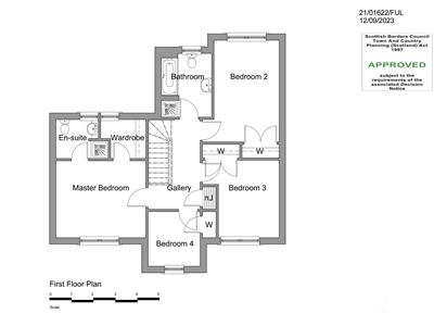
The approved plans include two well proportioned three bedroom detached bungalows, ideally suited to downsizers or those seeking single level living; four impressive four-bedroom detached two storey homes, designed with families in mind and offering generous living space; and one three-bedroom detached two storey property, with garage, perfect for young families, professionals, or those seeking a versatile home in a desirable setting.
Practical considerations have been well addressed, with mains water, electricity, and sewer connections already available on site. This greatly reduces initial infrastructure costs and provides a clear route to commencing construction with minimal delay. The setting combines the convenience of town amenities with the tranquility of a semi rural outlook, ensuring the location appeals to a wide cross section of the market.
With demand for quality housing in the area remaining consistently strong, this development represents a secure and attractive investment. The combination of approved planning consent, serviced land, and a premium setting with outstanding views makes this a development opportunity of considerable merit. For developers seeking to deliver a distinctive collection of homes in a location with enduring buyer demand, this site should not be overlooked.
The site includes some rubble and stone from the former care home. The owners will clear away certain loose materials, but the property is being sold as seen and in its present condition.
Full planning information for the development and planned properties can be found on the Scottish Borders Planning Website using reference number 21/01622/FUL or postcode TD9 0BA. The planned properties comprise of either 3 or 4 bedrooms, with 2 bathrooms, downstairs WC and utility room. (In different configurations) Plot 4, 5, 6 and 7 will enjoy elevated views over the town and Wilton Lodge park.
Services are available within the site and include Mains Electricity, Mains Water, Mains Drainage. The current owners will inform any interested buyers of the location of all utilities and services required.
Although these particulars are thought to be materially correct their accuracy cannot be guaranteed and they do not form part of any contract.
Property data and search facilities supplied by www.vebra.com