116a High Street
Henley-In-Arden
Warwickshire
B95 5PS
Plot only for sale. Register your interest with us!
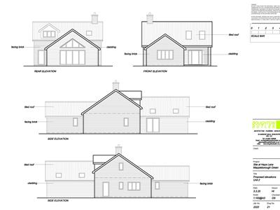
Prime Development Opportunity - Plot of Land with Full Planning Permission.
Discover the perfect chance to build your dream home or investment project on this countryside, 0.2 acre plot with undulating countryside views. Complete with Full Planning Permission for a Three Bedroom, Three en-suite Detached Home standing at just over 1,800 sq.ft behind private gates with manicured, landscaped gardens.
Situated in the desirable area of Mappleborough Green, this plot offers a rare chance to create a bespoke property in a sought-after location.
Planning ref: 24/03092/FUL
Although these particulars are thought to be materially correct their accuracy cannot be guaranteed and they do not form part of any contract.
Property data and search facilities supplied by www.vebra.com