69 Duke Street
Darlington
County Durham
DL3 7SD
Tenure: Freehold
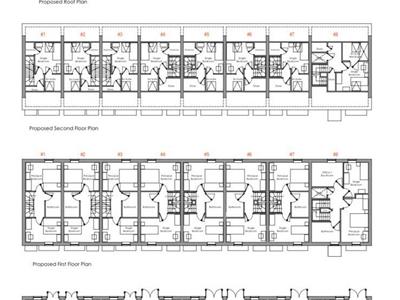
RESIDENTIAL OR RETAIL DEVELOPMENT OPPORTUNITY : PLANNING PERMISSION GRANTED FOR 8 DWELLINGS
We are privileged to offer For Sale an outstanding Residential or Retail development opportunity occupying a most pleasing position on Vancouver Street in Darlington. Planning consent has been granted for the demolition of a former chapel and the erection of seven, three bedroom houses, and one, four bedroom house.
Planning application reference. 22/00797/OUT
An outstanding opportunity has arisen to acquire an exciting Residential or Retail development opportunity subject to planning. Planning consent has been granted for the demolition of a former chapel and the erection of seven, three bedroom houses, and one, four bedroom house.
Planning application reference. 22/00797/OUT
The development opportunity occupies a most pleasing position on Vancouver Street in Darlington. Darlington benefits from a comprehensive range of day-to-day amenities. The development is situated in a predominantly residential area interspersed with small commercial properties. For the commuter, the major north/south trunk road the A1 (M) can be accessed in 5 minutes and a mainline railway station can be found in the town centre providing communications with the rest of the country. There are international airports located at Teesside and Newcastle providing both domestic and international flights.
Although these particulars are thought to be materially correct their accuracy cannot be guaranteed and they do not form part of any contract.
Property data and search facilities supplied by www.vebra.com