15 Market Street
Atherstone
CV9 1ET
Public house / hotel site with planning permission for the conversion of the existing buildings into nine residential units with a total GIA of approximately 11,060 sq. ft, comprising a rare development opportunity in a highly sought-after village.
Market Bosworth - 2 miles
Hinckley - 4.5 miles
M69 Junction 1 - 7 miles
Nuneaton Railway Station (Euston 55 minutes) - 9 miles
Leicester - 11 miles
Birmingham International Airport - 23 miles
The site offers a rare and valuable opportunity to create a development of new homes in Sutton Cheney, which is an attractive and unspoilt village in West Leicestershire, close to the popular small town of Market Bosworth. Sutton Cheney is a desirable village and developers can be confident that they will be able to create a premium residential product at the site.
Sutton Cheney is approximately 2 miles southeast of the attractive small town of Market Bosworth. The larger town of Hinckley is approximately 4½ miles to the south and Leicester approximately 11 miles to the east. As well as the small community pub planned for the site itself, the village has another very well renowned pub and restaurant, The Hercules Revived, and an active local community including a village hall and church.
Road communications are excellent, with the A447 approximately 1 mile to east which gives access to the M69 and M1 Junction about 7 miles to the south. For travelling west, the A5 at Fenny Drayton is about 5½ miles and this in turn gives access to the M42. Birmingham city centre is approximately 33 miles. There is an excellent mainline railway station at Nuneaton with services to Euston in just under an hour and a more local station at Hinckley on the Leicester to Birmingham line. The surrounding countryside is attractive rolling farmland and there is an excellent local footpath network which allows easy access to villages and to Market Bosworth.
The site currently comprises a public house and hotel, of which the main part is a period unlisted building of brick and tile construction, together with extensions to the rear. To the rear of this is an ‘L’ shaped brick and tile range of buildings currently set out as ensuite letting rooms, and nearby is a detached building currently used as a function room. There is also a grass paddock of about 0.7 acres and an extensive car park.
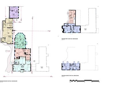
A planning application (reference 21/01038/FUL) was granted by Hinckley and Bosworth Borough Council in July 2023 for the conversion of the buildings to nine residential units.
The approved site layout plans are available in our online data room. Please contact Catherine Docherty at the Atherstone Office for access.
There is a S.106 agreement requiring the developer to provide a community building as shown on the plans. The building is to be a prefabricated structure with a floor area of about 84m . The S.106 agreement also requires the developer to provide an area of open space, Including an equipped children’s play area and to make these available to the Parish Council for future management.
The planning permission includes the retention of two rooms of the main building as a community pub. The developer will need to ensure that the pub rooms are fit for purpose but is not expected to have any involvement in its ongoing management.
The proposed accommodation comprises the following:
Size Type
Flat 11,098 sq.ft.3 bedroom 2 storey ‘cottage’
Flat 21,194 sq.ft.3 bedroom duplex apartment
Bungalow 1 720 sq.ft.2 bedroom
Bungalow 21,184 sq.ft.2 bedroom
House 1 1,054 sq.ft.2 bedroom 2 storey dormer
House 2 1,399 sq.ft.3 bedroom 2 storey dormer
House 3 968 sq.ft.2 bedroom 2 storey dormer
House 4 1,399 sq.ft.3 bedroom 2 storey dormer
House 5 2,044 sq.ft.4 bedroom detached
Total 11,060 sq.ft.
The land is sold freehold with vacant possession upon completion.
The site is understood to be connected to mains water, electricity and sewage services. There is no mains gas and supply will be via LPG. Purchasers are to make their own enquires into these services, they have not been tested by the agent.
The property is for sale via private treaty.
Greyhound Cottage, shown hatched blue on the plan, is also available by separate negotiation. This comprises a link detached cottage with 3 bedrooms, family bathroom, ensuite bathroom, kitchen/dining room, utility, shower room, living room, cloakroom, garden and detached garage/office.
Hinckley and Bosworth Borough Council
Strictly by prior appointment via the agents, Howkins and Harrison LLP
The plan, area and description are believed to be correct in every way, but no claim will be entertained by the vendor or the agents in respect of any error, omissions or misdescriptions. The plan is for identification purposes only.
To enable us to comply with the Money Laundering Regulations we need to verify the buyer’s identity before proceeding with a sale.
We charge a small administration fee for conducting an electronic AML verification check via our online provider, MoveButler.
Every care has been taken with the preparation of these Sales Particulars, but complete accuracy cannot be guaranteed. In all cases, buyers should verify matters for themselves. Where property alterations have been undertaken buyers should check that relevant permissions have been obtained. If there is any point, which is of particular importance let us know and we will verify it for you. These Particulars do not constitute a contract or part of a contract. All measurements are approximate. The Fixtures, Fittings, Services & Appliances have not been tested and therefore no guarantee can be given that they are in working order. Photographs are provided for general information and it cannot be inferred that any item shown is included in the sale. Plans are provided for general guidance and are not to scale.
Although these particulars are thought to be materially correct their accuracy cannot be guaranteed and they do not form part of any contract.
Property data and search facilities supplied by www.vebra.com