1 The Wynd,
Buccleuch Street,
Melrose
Scotland
TD6 9LD
We are delighted to bring to the market this very unique and exciting opportunity to purchase a large building plot with newly constructed three-bedroom holiday chalet with planning permission for a five-bedroom dwelling house, located within the dramatic rural landscape on the outskirts of the popular commuter village of Broughton.
The plot equates to circa 2.20 acres or thereby and provides an opportunity for a budding self-builder to construct their own dwelling house along with a turn-key, high-specification holiday chalet which has the potential to provide a lucrative income.
The plot also incorporates a large steel portal-frame outbuilding (with power and lighting), wood store and static caravan also benefitting from power, lighting and drainage.
There is also an additional section of woodland located on the opposite side of the road will be included within the sale.
The newly constructed holiday chalet is finished to an immaculate standard, benefitting from good quality fixtures & fittings, wood-burning stove and high levels of energy efficiency including air source heating and double glazing. The chalet is entered via muli-locking door into a large welcoming lounge / dining room / kitchen area benefitting from large picture windows soaking in the surrounding countryside. A wood-burning stove is the centrepiece of the room a sure to add a touch of luxury to guests.
The kitchen is well-equipped with an electric oven, 4-ring hob, washing machine and dishwasher catering for all needs.
The rear hallway separates the living area to the bedrooms. The principal bedroom benefits from a peaceful view to the front of the property over the valley with a private en-suite shower room. The two further bedrooms are well-proportioned and enjoy a view over the woodland to the rear. The well-appointed bathroom completes the accommodation.
Externally there is a large gravelled driveway, providing ample parking for guests, and large lawned areas perfect for recreation and children.
The chalet is sure to be popular with holiday makers looking for both adventurous and peaceful breaks withn the Scottish Borders and could provide a lucrative income. The well awaiting River Tweed Trail is soon to be completed and provides hill walking and cycling routes down the length the River Tweed.
***Please note that the chalet only has permission to be used as a holiday home and cannot be changed to full residential use. ***
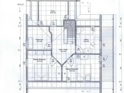
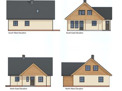
There is full planning permission for the erection of a two storey 4-bedroom chalet villa. The proposed dwelling provides comfortable accommodation equating to circa 170 Sq. m. or 1830 Sq. ft. or thereby. The full Application Reference Number is 04/02222/FUL. A full suite of documents are available to view online via the Scottish Borders Planning Portal, alternatively upon request from the estate agent. Although the planning application was approved in 2004, Commencement Works were started in 2010 with a letter provided by Scottish Borders Council in 2010 stating that the planning consent will now not time expire.
The full plot is believed to equate to circa 2.20 acres or thereby and follows the former racha railway line. The plot is found to be largely level with good vehicular access.
Mains water, electricity, telecom and private draining available on-site.
The site lies just south of the charming village of Broughton, in the beautiful Scottish Borders. Broughton itself is a thriving community, well-regarded for its welcoming atmosphere and amenities including a village shop, village hall, and a soon-to-be community-owned pub. Families benefit from a local primary school, with secondary education available in both Peebles and Biggar, offering a choice of excellent schools within easy reach.
For relaxation and leisure, Stobo Castle Spa is only a short drive away, providing a tranquil retreat alongside premium gym memberships—ideal for both homeowners and holiday makers. The area is also a paradise for outdoor enthusiasts, with the Tweed River Trail, an abundance of scenic walking routes, and world-class mountain biking in the Tweed Valley all nearby.
Despite its rural charm, the location offers great connectivity, with Glasgow and Edinburgh both within commuting distance. The nearby town of Peebles provides the closest shopping district, boasting a vibrant high street with a mix of national chains, boutique shops, and supermarkets.
There is a large steel portal-framed agricultural shed formed under a metal clad roof and overlaid with metal corrugated sheeting. The building is formed over a concrete foundation and is accessed via a large metal roller door to the front and a single pedestrian door to the side. There is mains power and lighting and provides the opportunity for a multitude of uses.
There is a static 4-berth caravan located on site and connected to the private drainage, mains water and mains electricity. This provides the perfect temporary base for a self0builder to be living on-site during the construction works.
There is a large timber framed wood store.
What3words: zoned.give.heightens
What3words: zoned.give.heightens
Strictly By Appointment Only via James Agent.
There may be the opportunity to purchase as two separate lots as follows:
LOT 1 - Holiday Chalet including garden grounds and gardens.
LOT 2 - Building Plot, Outbuildings and Woodland Area.
Please note that Lot 1 will not be sold separately unless there is a buyer for Lot 2.
All offers should be submitted in writing to Standard Scottish Format. All Parties are advised to lodge a Formal Note of Interest via their Solicitor. In the event of a Closing Date the Seller shall not be bound to accept any offer and reserves the right to accept an offer at anytime.
Although these particulars are thought to be materially correct their accuracy cannot be guaranteed and they do not form part of any contract.
Property data and search facilities supplied by www.vebra.com