44 Bathurst Walk, Richings Way
Iver
Buckinghamshire
SL0 9BH
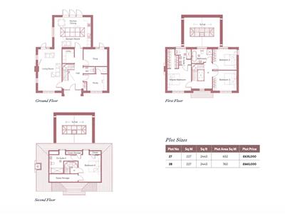
Move Inn Estates are proud to present to the market the opportunity to secure a PLOT for PINEWOOD a BRAND NEW 4 BEDROOM DETACHED HOUSE of 2443 SQFT.
The Fourells Collection is a Landmark Development in Richings Park, Iver, Buckinghamshire
Your next chapter begins here.
The Fourells Collection, by forward-thinking developer Pearcroft, introduces an exclusive new community of 18 carbon-negative residences in the heart of South Buckinghamshire. Blending timeless architecture, intelligent technology, and a unique off-plan purchase structure, The Fourells offers not just a home, but a smarter way to buy.
________________________________________
A SMARTER ROUTE TO OWNERSHIP
Unlike a traditional purchase, The Fourells allows you to secure your home in two clear stages, creating savings and peace of mind:
1. Secure Your Plot – Purchase your chosen plot at a transparent, fixed price.
2. Build Your Home – Over 12 months, Pearcroft delivers a complete turnkey build package, covering design, engineering, utilities, and warranty.
3. Enjoy Immediate Equity – On completion, your finished home is worth significantly more than your total spend, giving you built-in equity from day one.
________________________________________
WORKED EXAMPLE – BEECHWOOD HOME
4 Bedroom Semi-Detached
Stage 1: Plot Purchase
• Purchase Price: £517,750
• Legals: £5,000
• Searches: £1,200
• Stamp Duty: £13,250
Total Initial Outlay: £537,200
Stage 2: Turnkey Build (12 months)
• Fixed Build Cost: £536,500
(includes architects’ fees, surveys, utilities, 10-year warranty, and more)
Total Buyer Cost: £1,073,700
Market Value on Completion: £1,291,680
Buyer’s Equity Uplift: £217,980
This structured approach ensures transparency, value, and a clear financial advantage compared to purchasing a completed home on the open market.
Although these particulars are thought to be materially correct their accuracy cannot be guaranteed and they do not form part of any contract.
Property data and search facilities supplied by www.vebra.com